




Croazia, Costa Dalmazia, Split città - Spazio ufficio moderno e rappresentativo
ID: 2016/666Informazioni di base
Spazio vitale:109 m2
Camere da letto:6
Bagni:2
Distanza dal mare:800 m
Dotazioni
- Certificato energetico
- Moderna
Sulla proprietà
Si affittano uffici moderni e rappresentativi, superficie totale di 109 m2. Lo spazio si trova al piano terra di un riconoscibile edificio residenziale e commerciale, situato nel centro città più ampio,
in un piacevole ambiente lavorativo e nelle immediate vicinanze di numerose istituzioni statali come il tribunale, l’amministrazione delle imposte e simili.
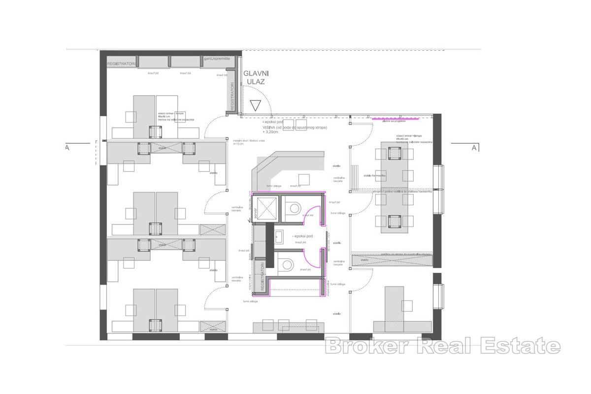
Lo spazio è composto da un ingresso con reception, sei uffici separati, un ampio angolo cottura e 2 bagni.
Con un soffitto alto 5 metri e stanze separate da pareti in vetro, l’intero spazio trasmette spaziosità, eleganza e lusso.
Sono riservati tre spazi ufficio per 10 dipendenti, con possibilità di ampliamento ad altre tre postazioni di lavoro. Una stanza è riservata al direttore, mentre le altre due sono attualmente adibite a sale riunioni individuali, che possono essere unite in un unico spazio più grande per le riunioni dell’intero ufficio. Lo spazio è splendidamente progettato, completamente arredato e attrezzato, ed è pronto per lavorare.
Tra le caratteristiche principali della disposizione e delle attrezzature, vale la pena evidenziare quanto segue:
– riscaldamento a pavimento e aria condizionata in tutte le stanze
– sistema di videosorveglianza e allarme
– numerosi armadi e scaffali a muro
– inventario completo dell’ufficio.
Esiste anche un’ulteriore possibilità (in accordo con il gestore) di collocare un annuncio pubblicitario all’esterno, nell’area comune dell’edificio. Lo spazio è ottimamente collegato alle principali arterie cittadine e offre numerose possibilità di parcheggio nelle immediate vicinanze.
Grazie alla posizione eccellente e pratica, all’ambiente commerciale di qualità, all’elevato livello di design degli interni e ai numerosi vantaggi aggiuntivi dello spazio, il potenziale dello stesso è molto facile da riconoscere. Lo spazio è ideale per numerose attività di ufficio, agenzie, società di consulenza e uffici di rappresentanza.
Posizione
Split città, Costa Dalmazia
Spalato è la seconda città più grande della Croazia dopo la capitale Zagabria, la città più grande della Dalmazia e la città più grande della costa croata. Si trova sulla sponda orientale del Mar Adriatico e si sviluppa su una penisola centrale e sui suoi dintorni. Snodo dei trasporti intraregionali e popolare destinazione turistica, la città è collegata alle isole dell'Adriatico.
Stai cercando qualcos'altro?



















