


Croazia, Costa Dalmazia, Split città - Locale commerciale, via Vukovarska, 110m2
ID: 2027/26Informazioni di base
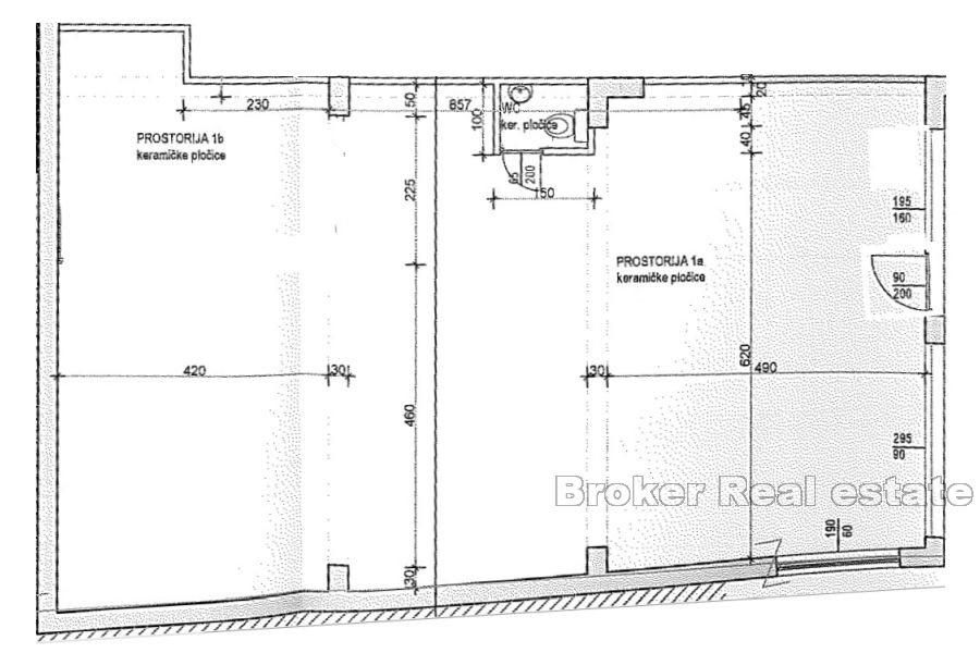
Spazio vitale:110 m2
Camere da letto:2
Bagni:1
Sulla proprietà
Locale commerciale di 110 mq lungo la strada principale. Si compone di due stanze, una sala di ricevimento più piccola, la stanza principale e un bagno. C’è la possibilità di conversione in un unico grande spazio. Il parcheggio privato è sempre disponibile ed è possibile l’accesso con camion. Ideale per lo scopo di un negozio, sala giochi, palestra o magazzino. Molto pulito.
Posizione
Split città, Costa Dalmazia
Spalato è la seconda città più grande della Croazia dopo la capitale Zagabria, la città più grande della Dalmazia e la città più grande della costa croata. Si trova sulla sponda orientale del Mar Adriatico e si sviluppa su una penisola centrale e sui suoi dintorni. Snodo dei trasporti intraregionali e popolare destinazione turistica, la città è collegata alle isole dell'Adriatico.
Stai cercando qualcos'altro?






