





Croazia, Costa Dalmazia, Trogir - Appartamenti con vista sul mare
ID: 2035/137Informazioni di base
Spazio vitale:105 m2
Spazio terrestre:28 m2
Camere da letto:3
Bagni:3
Distanza dal mare:100 m
Vantaggi della proprietà
- Vista sul mare
- Nuova costruzione
Dotazioni
- Certificato energetico
- Garage
- Moderna
- Parcheggio
Sulla proprietà
A Trogir è in costruzione un edificio residenziale con 26 appartamenti. In un’ottima posizione, è molto vicino al centro di Trogir, ma anche al mare. La struttura è esposta a sud e l’accesso è previsto dalla strada principale.
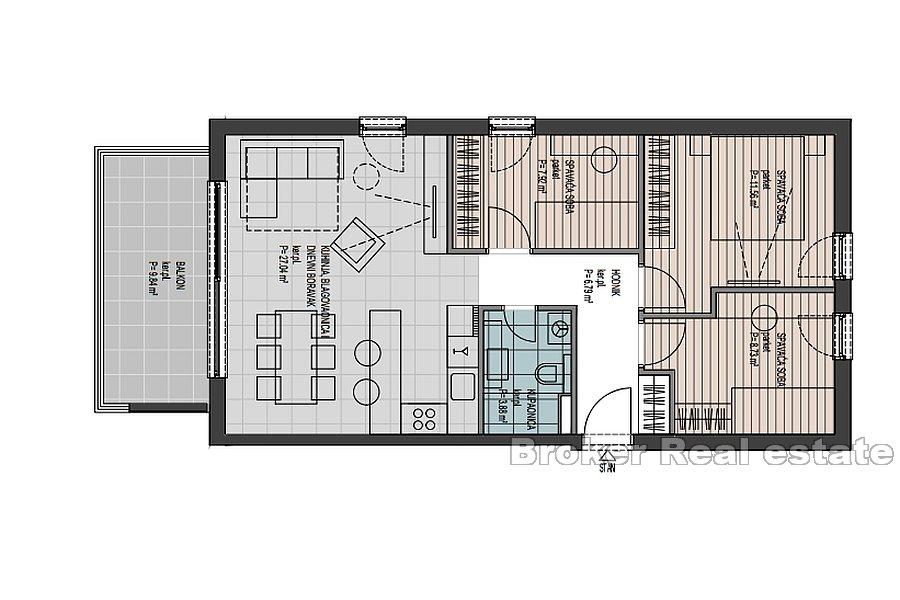
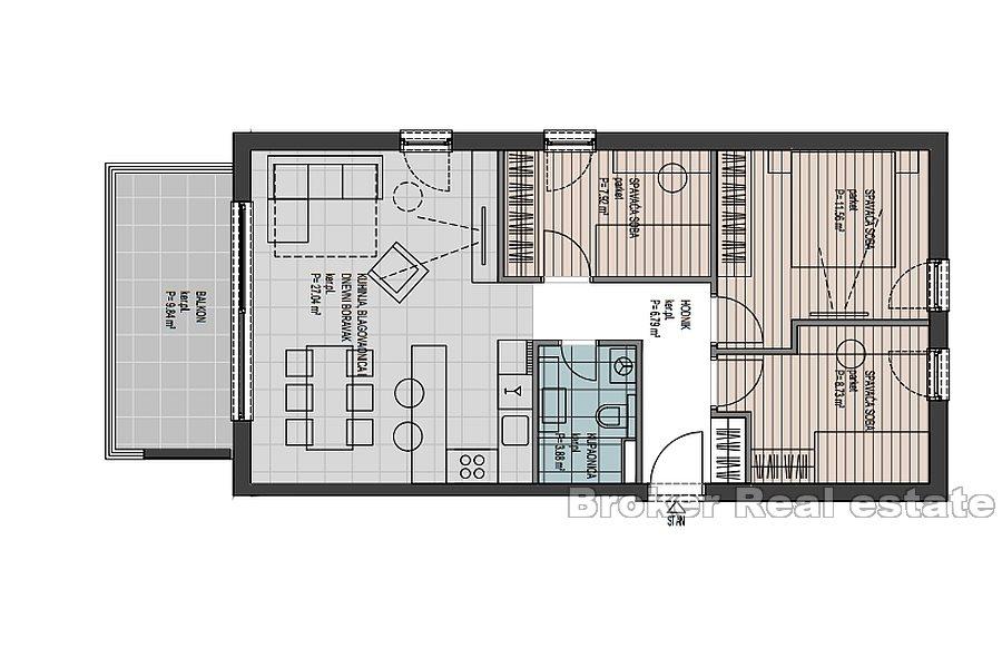
L’edificio avrà un seminterrato e cinque piani. Ci saranno 6 appartamenti su ogni piano, di cui ci sono una camera da letto, due camere da letto e tre camere da letto, ciascuno con accesso ad una terrazza o balcone.
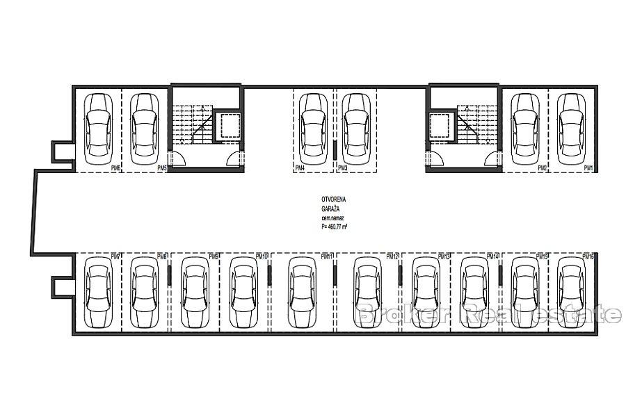
Nel seminterrato dell’edificio ci sarà un garage con posti auto e con l’acquisto dell’appartamento è obbligatorio l’acquisto di un posto auto in garage al prezzo di 20.000 €. Nella costruzione e nell’arredamento verranno utilizzati materiali di qualità (piastrelle e sanitari di alta qualità, persiane in PVC, condizionatore in ogni stanza, riscaldamento a pavimento nei bagni ecc.).
Gli appartamenti sono un’ottima scelta per tutti coloro che cercano un appartamento vicino alla città, con vista sul mare.
PIANO TERRA:
A1 – 53,67 m² + terrazzo scoperto 11,65 m² + terrazzo 17,24 m² – 190 736 € – VENDUTO!
A3 – 53 m² + terrazzo 17,24 m² – 172 536 € – VENDUTO!
B3 – 53 m² + terrazzo 17,24 m² – 172 536 € – VENDUTO!
PRIMO PIANO:
B4 – 65,92 m² + balcone 9,84 m² – 212 520 € – VENDUTO!
SECONDO PIANO:
B7 – 65,92 m² + balcone 9,84 m² – 226 688 € – VENDUTO!
ATTICO:
A13 – 105,29 m² + loggia 8,25 m² + terrazzo coperto 19,64 m² + terrazzo scoperto 27,96 m² – 514 424 €
B13 – 105,29 m² + loggia 8,25 m² + terrazzo coperto 19,64 m² + terrazzo scoperto 27,96 m² – 514 424 €
Posizione
Trogir, Costa Dalmazia
Trogir è una città storica e un porto sulla costa adriatica nella contea di Spalato e Dalmazia, in Croazia. La storica città di Trogir è situata su una piccola isola tra la terraferma croata e l'isola di Čiovo. Si trova a 27 chilometri a ovest della città di Spalato. Dal 1997 il centro storico di Trogir è stato inserito nell'elenco dei patrimoni dell'umanità dell'UNESCO.
Stai cercando qualcos'altro?










