





Kroatia, Dalmatia kysten, Split by - Duplex penthouse
ID: 4035/30Grunnleggende informasjon
Land plass:89 m2
Soverom:2
Bad:1
Fasiliteter
- Energisertifikat
- Garasje
Om eiendommen
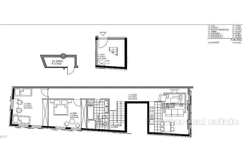
Duplex penthouse ligger i Split i kommersiell-bolig nybygging i 3-4 av 4 etasjer, 89 m2. Nedre nivå: hall. Øvre etasje: 2 soverom, stue med kjøkken og spisestue, en romslig hall og bad.
Mulighet for å kjøpe garasje parkeringsplass!
Orientering nord / vest / sør. Leiligheten er uferdig, utstyrt og laget med materialer av høy kvalitet.
OPSJONER: Privat panoramautsikt (fra garasjen direkte inn i stuen), smart house system, varmebalansen i huset sikrer Daikins oppvarmings- og kjølesystem altHerma. Bruk av varmepumper Luft til vannvarme fra luften blir omdannet til termisk energi for oppvarming og når den kommer ut av 1 KW innebygd elektrisitet 3-5 KW varme. Systemet er preget av en nesten støyfri viftspole. Den komplette bygningen er dekket av aluminium og glassfasade av den nye generasjonen, som sammen utgjør absolutt beskyttelse mot ytre påvirkninger. Leilighetene er ytterligere beskyttet av glidende aluminiumsskodder fra den harde varme solen. Forretninger av bygningen er helt skilt fra stue og består av 5 etasjer (garasjeområde på -1, kjeller, bakken, første og andre etasje.) I tredje etasje og 4 etasjer er det 9 leiligheter. Garasje del av oppholdsrommet er reservert på nivå -2, hvor og lagring. Inneholder 16 parkeringsplasser.
Lokasjon
Split by, Dalmatia kysten
Split er den nest største byen i Kroatia etter hovedstaden Zagreb, den største byen i Dalmatia og den største byen på den kroatiske kysten. Den ligger på den østlige bredden av Adriaterhavet og er spredt over en sentral halvøy og dens omgivelser. Byen er et intraregionalt transportknutepunkt og populært turistmål, og er knyttet til Adriaterhavsøyene og Appennin-halvøya.
Leter du etter noe annet?










