





Kroatia, Dalmatia øyene, Hvar - Nybygg - ettroms leilighet, første etasje med hage
ID: 2051/40Grunnleggende informasjon
Leveplass:36 m2
Land plass:140 m2
Soverom:1
Bad:1
Sjøavstand:300 m
Eiendomsfordeler
- Nybygg
Fasiliteter
- Energisertifikat
- Moderne
- Parkering
Om eiendommen
I et velholdt kyststed på nordsiden av øya Hvar, kjent for sin marina og avslappede middelhavsatmosfære, er et nytt prosjekt med 16 leiligheter under bygging.
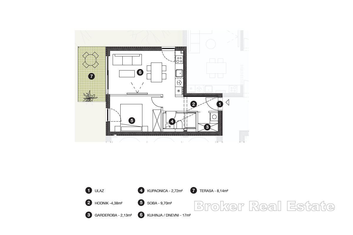
I første etasje i bygning B ligger leilighet S1, med et totalt nettoareal på 52 m2, som kjennetegnes av en funksjonell planløsning og moderne design. Den består av en entré, garderobe/bod, bad og soverom, mens den åpne stuen med kjøkken og spisestue fører til en hageterrasse og en hage på 140 m2. Leiligheten er tosidig (SE-SV), noe som sikrer rikelig med lys og et hyggelig opphold gjennom dagen.
Høykvalitetsmaterialer og moderne utstyr ble brukt under byggingen, inkludert førsteklasses keramikk, gulvvarme på badene og klimaanlegg i alle rom.
Prosjektet tilbyr utendørs parkeringsplasser, hvorav noen vil være overbygde. Byggingen skal etter planen være ferdig innen tidlig sommer 2026.
Prosjektet ligger i et rolig område, bare 300 meter fra sjøen, i nærheten av alle nødvendige fasiliteter – butikker, restauranter, kafeer, marina og promenade.
Takket være den praktiske beliggenheten og den hyggelige atmosfæren er leiligheten et ideelt valg for helårsbolig eller en trygg investering for turistutleie.
* Prisen inkluderer mva. – kjøperen er ikke pålagt å betale eiendomsskatt.
Lokasjon
Hvar, Dalmatia øyene
Hvar er en kroatisk øy i Adriaterhavet, som ligger utenfor den dalmatiske kysten, som ligger mellom øyene Brač, Vis og Korčula. Åssidene er dekket av furuskog, med vingårder, olivenlunder, frukthager og lavendelfelt i jordbruksområdene. Klimaet er preget av milde vintre, og varme somre med mange soltimer.
Leter du etter noe annet?







