





Kroatia, Dalmatia kysten, Primosten - Moderne toroms leilighet med svømmebasseng
ID: 5473/30aGrunnleggende informasjon
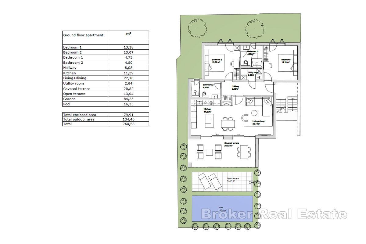
Leveplass:80 m2
Land plass:135 m2
Soverom:2
Bad:2
Etasjer:1
Sjøavstand:500 m
Eiendomsfordeler
- Havutsikt
- Nybygg
Fasiliteter
- Energisertifikat
- Moderne
- Parkering
Om eiendommen
En vakker toroms leilighet er til salgs i et nybygd leilighetskompleks, beliggende på en attraktiv beliggenhet ovenfor Primošten.
Den ligger i første etasje av bygningen, og dekker 80 m2 boareal og ca. 135 m2 uteplass. Den består av to soverom, hvorav hovedsoverom har eget bad, samt en gang, bod og en stue som kombinerer kjøkken, stue og spisestue.
Store glassvegger forbinder innendørs- og utendørsområdene. Utendørsområdet inkluderer en overbygd terrasse på 20 m2, et oppvarmet svømmebasseng på 16 m2, med et solområde og en hage på 65 m2.
Leiligheten har også en parkeringsplass.
Denne leiligheten er en flott investering for både turisme og familieferier.
Lokasjon
Primosten, Dalmatia kysten
Primošten er en landsby og kommune i Šibenik-Knin fylke i Kroatia. Det ligger i sør, mellom byene Šibenik og Trogir, på Adriaterhavskysten. Primošten er kjent for sine enorme og vakre vingårder. Den største stranden i Primošten heter Raduča, og dens mindre del, Mala Raduča, er kåret til en av de 10 vakreste strendene i Kroatia.
Leter du etter noe annet?









