





Kroatia, Dalmatia kysten, Zadar-området - Moderne to-roms leilighet med takterrasse
ID: 2043/156Grunnleggende informasjon
Leveplass:85 m2
Land plass:79 m2
Soverom:2
Bad:1
Sjøavstand:200 m
Eiendomsfordeler
- Havutsikt
- Nybygg
Fasiliteter
- Energisertifikat
- Moderne
- Parkering
Om eiendommen
En moderne to-roms leilighet er til salgs i en nybygd bygning nær Zadar. Bygget med totalt ni leiligheter ligger på en tomt beliggende i opphøyet terreng med slak helling mot sjøen, så nesten hver leilighet har sjøutsikt uten innblanding fra andre eiendommer.
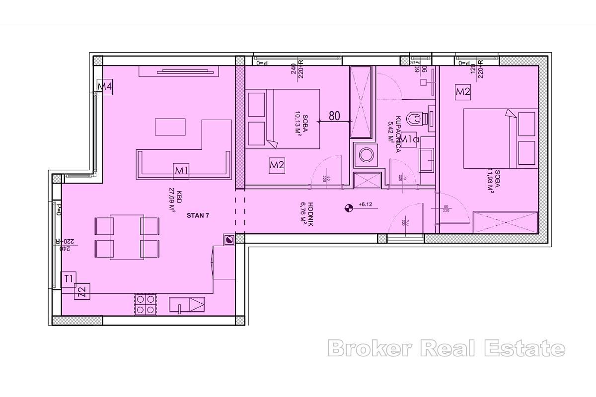
Leiligheten merket S7 ligger i andre etasje i bolighuset og har en romslig takterrasse og en utendørs parkeringsplass inkludert i prisen. Terrassen til leiligheten gir utsikt over havet og selve leiligheten består av to soverom, ett bad og en gang som forbinder disse rommene med kjøkken, spisestue og stue.
En felles trapp fører til en privat takterrasse på 66 m2 som er ideell for sosialt samvær med jacuzzi og pergola.
Kontakt oss for flere ledige leiligheter i bygget.
Lokasjon
Zadar-området, Dalmatia kysten
Zadar-området ligger slik til at det omfatter den nordlige dalmatiske kysten og områdene Ravni Kotari, Pozrmanja og Sør-Lika. Kystområdet dekker en bred stripe fra byen Biograd na Moru til Velebit-fjellet. Det indre kystområdet består av det store, flate området Ravni Kotari. Området er godt forbundet med en moderne motorvei.
Leter du etter noe annet?









