





Chorwacja, Dalmacja wybrzeże, Makarska - Ekskluzywne apartamenty, na sprzedaż
ID: 2021/111Podstawowe informacje
Przestrzeń życiowa:77 m2
Sypialnie:2
Łazienki:3
Odległość morska:10 m
Wybrzeże
O nieruchomości
Ekskluzywne apartamenty położone w wyjątkowym miejscu centralnej plaży w Makarsie, pierwszym rzędzie do morza.
Nieruchomość, w której zlokalizowane są apartamenty, znajduje się w fazie budowy (ukończona praca nieukończona), a jej ostateczne zakończenie planowane jest na maj 2018 r.
Typy mieszkań na sprzedaż:
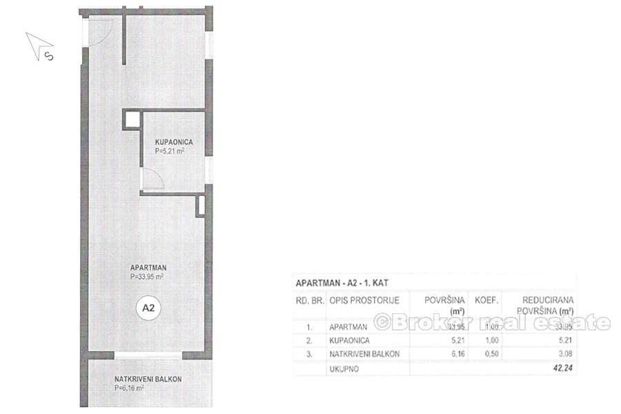
Apartamenty o powierzchni 42 m2 z jedną sypialnią, orientacja południowa – sprzedany!
55 m2 – apartamenty z 2 sypialniami – sprzedany!
77 m2-komfortowy penthouse
Rarity rynku
Lokalizacja
Makarska, Dalmacja wybrzeże
Makarska to znaczący regionalny ośrodek turystyczny, położony w zatoce w kształcie podkowy pomiędzy górami Biokovo a Morzem Adriatyckim. Miasto słynie z promenady otoczonej palmami, przy której kawiarnie, bary i butiki wychodzą na port. Makarska jest centrum Riwiery Makarskiej, popularnej miejscowości turystycznej pod górą Biokovo.
Szukasz czegoś innego?










