




Chorwacja, Dalmacja wybrzeże, Omis - Dwupokojowy apartament nad morzem
ID: 2052/93hPodstawowe informacje
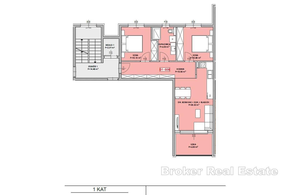
Przestrzeń życiowa:63 m2
Sypialnie:2
Łazienki:1
Podłogi:1
Odległość morska:250 m
Zalety nieruchomości
- Nowoczesna
- Widok morza
Udogodnienia
- Certyfikat Energetyczny
- Garaż
- Nowy build
- Parking
O nieruchomości
Na sprzedaż apartament o powierzchni 63 m², położony na pierwszym piętrze nowoczesnego budynku z windą, w bezpośrednim sąsiedztwie morza. Przestronny salon z kuchnią i jadalnią stanowi serce domu, a dwie sypialnie zapewniają prywatność i komfort. Z salonu wyjście na loggię, która oferuje intymny kącik do relaksu i wypoczynku na świeżym powietrzu z widokiem na morze.
Jedną z głównych zalet tej nieruchomości jest możliwość dostosowania wnętrza do indywidualnych potrzeb nabywcy, co pozwala na stworzenie domu w pełni odpowiadającego jego gustowi i stylowi. Do wykończenia wykorzystano wysokiej jakości materiały, nowoczesną ceramikę, armaturę sanitarną i stolarkę, a ostateczny wygląd można uzgodnić z nabywcą.
Apartament wyposażony jest w ogrzewanie podłogowe, klimatyzację i drzwi antywłamaniowe, a szklane balustrady i wideodomofon podkreślają nowoczesny, bezpieczny i wysokiej jakości charakter przestrzeni. W budynku znajduje się winda, a nabywca ma możliwość dokupienia garażu lub zewnętrznego miejsca parkingowego.
Położony zaledwie kilka kroków od promenady, plaży, restauracji i wszystkich niezbędnych udogodnień, apartament łączy w sobie doskonałą lokalizację, wysoką jakość wykonania i nowoczesny design. To idealny wybór dla osób poszukujących komfortowego domu nad morzem lub ekskluzywnej inwestycji w nowoczesną nieruchomość nadmorską.
Lokalizacja
Omis, Dalmacja wybrzeże
Omiš to miasto i port w regionie Dalmacji w Chorwacji. Miasto położone jest około 25 kilometrów na południowy wschód od drugiego co do wielkości miasta Chorwacji, Splitu, gdzie rzeka Cetina wpada do Morza Adriatyckiego. W przeszłości Omiš było dobrze znane jako miasto pirackie, którego statki budowano z myślą o ataku i szybkim wyprowadzaniu do ujścia rzeki Cetina.
Szukasz czegoś innego?

























