



Chorwacja, Dalmacja wybrzeże, Split miasto, Mejaši - Powierzchnia biurowa w nowoczesnym budynku biurowym
ID: 2056/02bPodstawowe informacje
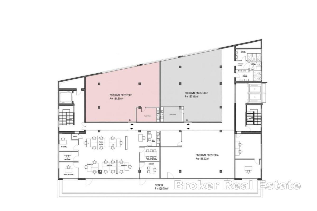
Przestrzeń życiowa:152 m2
Sypialnie:4
Łazienki:2
Odległość morska:2300 m
Udogodnienia
- Certyfikat Energetyczny
- Garaż
- Nowy build
- Parking
O nieruchomości
Powierzchnia biurowa znajduje się na drugim piętrze budynku biurowego w atrakcyjnej lokalizacji we wschodniej części Splitu. Powierzchnia o powierzchni około 150 m² jest dostępna od zaraz. Obecnie jest w stanie surowym zamkniętym, co pozwala na pełną adaptację i elastyczną aranżację zgodnie z potrzebami przyszłego najemcy.
Dostęp do powierzchni możliwy jest windą osobową lub główną klatką schodową od strony wschodniej, a także windą towarową i klatką schodową od strony zachodniej. Idealna na biura lub inną działalność biznesową, przestrzeń łączy w sobie elastyczność z doskonałą lokalizacją i widocznością.
Nieruchomość znajduje się w bardzo ruchliwej i dobrze skomunikowanej lokalizacji, z bezpośrednim dojazdem z autostrady Split-Dugopolje. Centrum Splitu oddalone jest o 9 km, Solin o 3 km, a Dugopolje o 16 km. W pobliżu znajdują się również największe centra handlowe Mall of Split i City Center One.
Lokalizacja
Split miasto, Dalmacja wybrzeże
Split to drugie co do wielkości miasto Chorwacji po stolicy Zagrzebiu, największe miasto w Dalmacji i największe miasto na chorwackim wybrzeżu. Leży na wschodnim brzegu Morza Adriatyckiego i rozciąga się na środkowym półwyspie i jego okolicach. Miasto, będące wewnątrzregionalnym węzłem komunikacyjnym i popularnym kierunkiem turystycznym, ma połączenie z wyspami adriatyckimi i Półwyspem Apenińskim.
Szukasz czegoś innego?







