





Chorwacja, Dalmacja wybrzeże, Split miasto - Powierzchnia biurowa w strefie przemysłowej, na sprzedaż
ID: 4053/30Podstawowe informacje
Przestrzeń życiowa:104 m2
Sypialnie:4
Łazienki:1
O nieruchomości
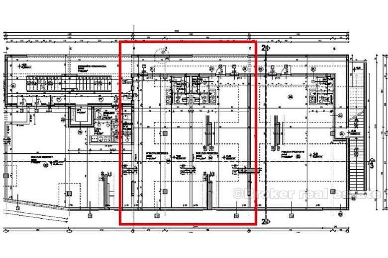
Powierzchnia biurowa w strefie przemysłowej Dračevac (koło Splitu / wzdłuż autostrady) mieści się w budynku komercyjnym na pierwszym piętrze w dwóch (nowych) powierzchni 104 m2.
Obszar składa się z korytarza oddzielającego 4 biura, 1 toalety i archiwum. W okolicy znajduje się również wspólny balkon z widokiem na autostradę. Budynek biurowy z różnymi rodzajami działalności (ubezpieczenia, firmy budowlane, zagraniczne stowarzyszenia, architekci, sklepy, saloniki, magazyny itp.)
Lokalizacja
Split miasto, Dalmacja wybrzeże
Split to drugie co do wielkości miasto Chorwacji po stolicy Zagrzebiu, największe miasto w Dalmacji i największe miasto na chorwackim wybrzeżu. Leży na wschodnim brzegu Morza Adriatyckiego i rozciąga się na środkowym półwyspie i jego okolicach. Miasto, będące wewnątrzregionalnym węzłem komunikacyjnym i popularnym kierunkiem turystycznym, ma połączenie z wyspami adriatyckimi i Półwyspem Apenińskim.
Szukasz czegoś innego?







