





Croazia, Costa Dalmazia, Makarska - Appartamenti esclusivi, in vendita
ID: 2021/111Informazioni di base
Spazio vitale:77 m2
Camere da letto:2
Bagni:3
Distanza dal mare:10 m
Lungomare
Sulla proprietà
Appartamenti esclusivi situati nella posizione unica della spiaggia centrale di Makarska, prima fila al mare.
La proprietà in cui si trovano gli appartamenti è in fase di costruzione (lavori ruvidi completati) e il suo completamento finale è previsto per il maggio 2018.
Tipi di appartamenti in vendita:
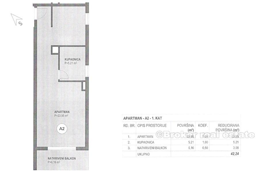
42 m2-appartamenti con una camera da letto, orientamento a sud – venduto!
55 m2-due camere da letto appartamenti – venduto!
Attico confortevole di 77 m2
Rarità del mercato
Posizione
Makarska, Costa Dalmazia
Makarska è un importante centro turistico regionale, situato su una baia a forma di ferro di cavallo tra i monti Biokovo e il mare Adriatico. La città è nota per il suo lungomare bordato di palme, dove caffè, bar e boutique si affacciano sul porto. Makarska è il centro della riviera di Makarska, una popolare destinazione turistica sotto il monte Biokovo.
Stai cercando qualcos'altro?










