





Croazia, Costa Dalmazia, Rogoznica - Terra attraente prima fila al mare
ID: 2019/91Informazioni di base
Spazio terrestre:3064 m2
Distanza dal mare:5 m
Lungomare
Vantaggi della proprietà
- Vista sul mare
Sulla proprietà
Terreno edificabile molto attraente, in prima fila sul mare, situato in una delle baie più belle nei pressi di Rogoznica.
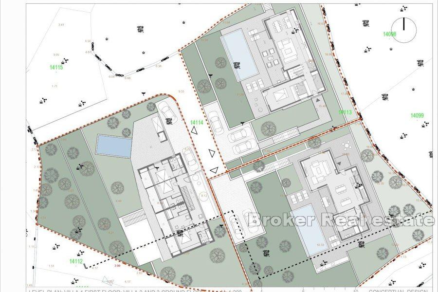
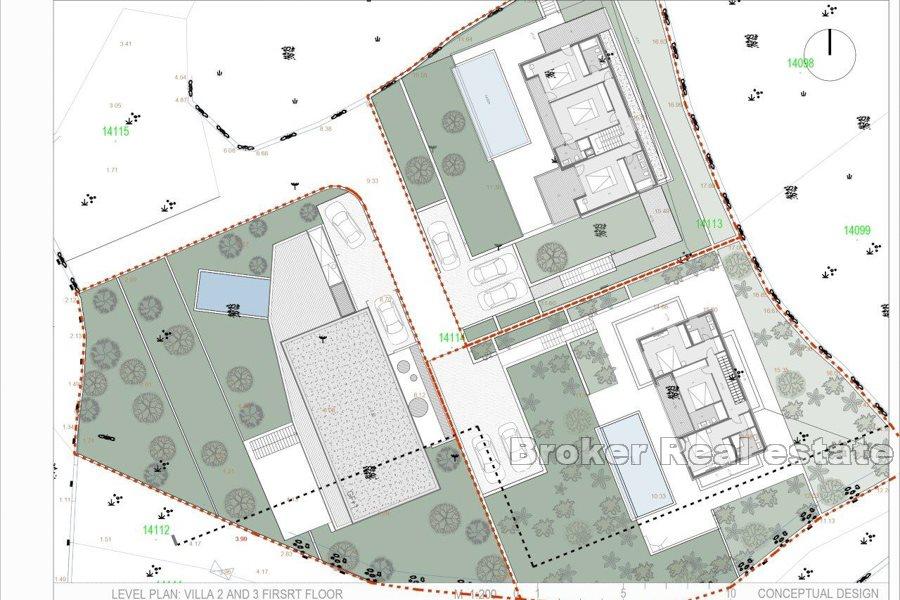
Il terreno è una grande opportunità per costruire un piccolo complesso di 3-4 ville, in una posizione superba, senza strada tra la proprietà e il mare. A causa dell’eccellente pendenza che non è né dolce né ripida, la vista sul mare non può essere bloccata.
Progetto di idea architettonica preparato dagli investitori, complesso di 3 ville di lusso, idealmente speso ogni centimetro di trama, offre una completa privacy per ciascuna delle ville, un accesso molto facile dalla strada e al mare.
Le trame sono divise come ville: A, B, C.
Villa A – si trova direttamente sulla spiaggia, la superficie del terreno è di 968 m2, mentre l’area lorda della villa è di 360 m2, per un totale di 4 camere da letto.
Villa B – è situata in 2a fila, la superficie del terreno è 892m2 e l’area lorda della villa è 290m2, per un totale di 4 camere da letto.
Villa C – è situata anche in seconda fila dal mare, la superficie del terreno è di 973m2, mentre l’area lorda della villa è di 250m2, per un totale di 4 camere da letto.
L’area della trama offre anche più opzioni, per costruire più ville, poiché l’area di terra minima necessaria per costruire è 500m2, ma adatta anche a chiunque desideri avere una bella villa con un ampio giardino o condomini.
Il futuro acquirente può decidere di acquistare;
-una o più ville menzionate, con sistema chiavi in mano
-una o più trame menzionate, con o senza permesso di costruzione valido secondo il progetto idea
terreno vuoto di 3064m2, libero da sviluppare
Su un terreno è presente un regolare collegamento elettrico, mentre il normale collegamento idrico si trova a 100 metri.
C’è la possibilità di estendere la zona con l’acquisto di più delle trame vicine.
La proprietà si trova a 30 chilometri dall’aeroporto internazionale di Spalato, a 10 chilometri dal centro di Rogoznica, a 5 chilometri dal centro di Razanj.
Posizione
Rogoznica, Costa Dalmazia
Rogoznica è un comune e un popolare villaggio turistico sulla costa dalmata in Croazia che si trova nella parte più meridionale della contea di Sebenico e Tenin, in una profonda baia riparata dal vento, a circa 30 km da Sebenico. A volte viene chiamata Šibenska Rogoznica per distinguerla da Lokva Rogoznica, un'altra località turistica della Dalmazia.
Stai cercando qualcos'altro?










