





Hrvatska, Dalmacija obala, Rogoznica - Atraktivno zemljište prvi red do mora
ID: 2019/91Osnovni podaci
Zemljište:3064 m2
Udaljenost od mora:5 m
Prvi red
Prednosti nekretnine
- Pogled na more
O nekretnini
Vrlo atraktivno građevinsko zemljište, prvi red do mora, smješteno u jednoj od najljepših uvala u blizini Rogoznice.
Zemljište je izvrsna prilika za izgradnju malog kompleksa od 3-4 vile, na izvrsnom položaju, bez ceste između nekretnine i mora. Zbog odličnog nagiba koji nije ni blag ni strm, pogled na more se ne može blokirati.
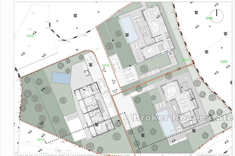
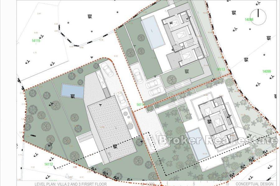
Investitor je pripremio idejni arhitektonski projekt, kompleks od 3 luksuzne vile, idealno potrošeni svaki centimetar parcele, nudi potpunu privatnost za svaku vilu, vrlo jednostavan pristup s ulice i mora.
Parcele su podijeljene kao vile: A, B, C.
Vila A – nalazi se direktno na plaži, površina zemljišta je 968m2, dok je bruto površina vile 360m2, ukupno 4 spavaće sobe.
Vila B – nalazi se u 2. redu od mora, površina zemljišta je 892m2, a bruto površina vile je 290m2, ukupno 4 spavaće sobe.
Vila C – nalazi se također u 2. redu od mora, površina zemljišta je 973m2, dok je bruto površina vile 250m2, ukupno 4 spavaće sobe.
Površina parcele također nudi više mogućnosti za izgradnju više vila, jer je minimalna potrebna površina za izgradnju 500m2, ali također pogodna za sve koji žele imati jednu prekrasnu vilu s velikim vrtom ili apartmanskim zgradama.
Budući kupac može se odlučiti na kupnju;
– jedne ili više spomenutih vila po sistemu ključ u ruke
– jedna ili više spomenutih parcela, sa ili bez valjane građevinske dozvole prema idejnom projektu
– prazna parcela površine 3064m2, slobodna za razvoj
Na parceli postoji redovan priključak za struju, dok je redovan priključak vode unutar 100 metara.
Postoji mogućnost proširenja zone kupnjom više susjednih parcela.
Nekretnina je udaljena 30 kilometara od međunarodne zračne luke Split, 10 kilometara od centra Rogoznice, 5 kilometara od centra Ražnja.
Lokacija
Rogoznica, Dalmacija obala
Rogoznica je općina i popularno turističko mjesto na dalmatinskoj obali u Hrvatskoj koje se nalazi na krajnjem jugu Šibensko-kninske županije, u dubokoj uvali zaštićenoj od vjetra, oko 30 km od Šibenika. Povremeno se naziva Šibenska Rogoznica kako bi se razlikovala od Lokve Rogoznice, drugog turističkog mjesta u Dalmaciji.
Tražiš li nešto drugo?










