





Kroatien, Dalmatiens öar, Brac - Byggnadstomt med byggprojekt
ID: 2016/629Basinformation
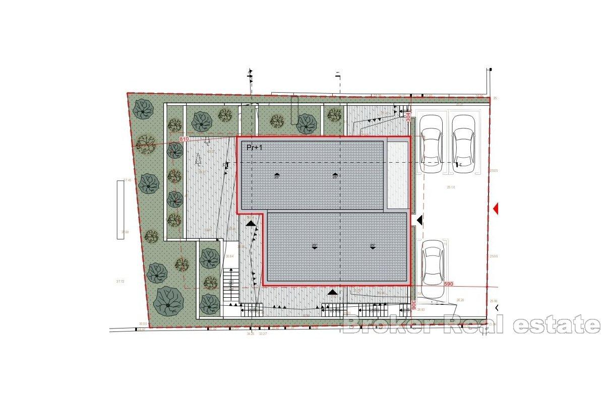
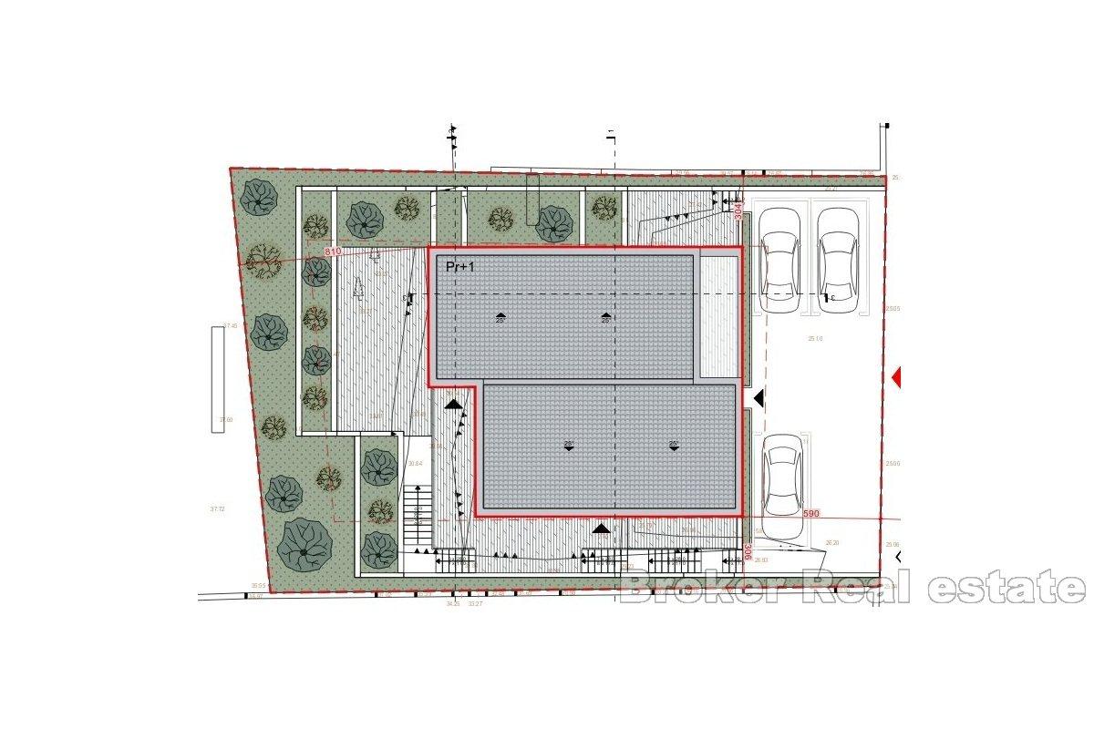
Markutrymme:486 m2
Avstånd till havet:400 m
Om fastigheten
Byggnadstomt med byggprojekt, belägen på norra sidan av ön Brač.
Marken har en total yta på 486 m2, är rektangulär i form och kaskadtyp, med enkel åtkomst från huvudvägarna.
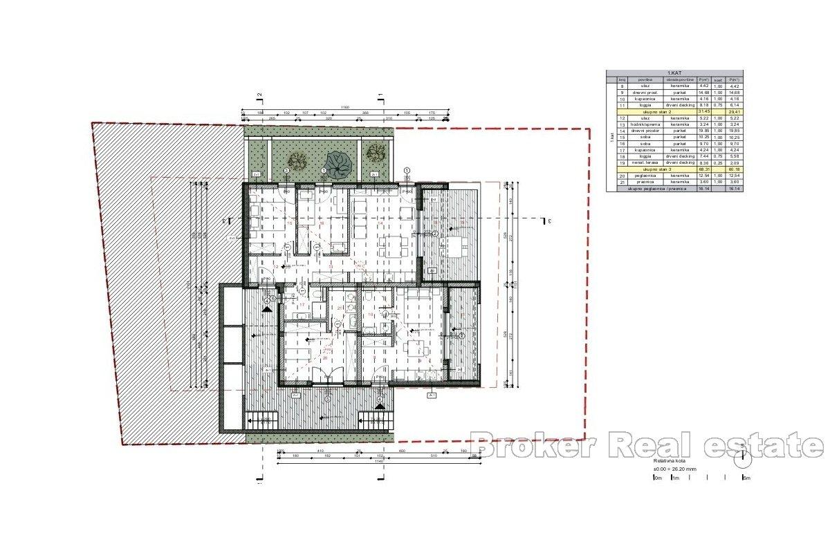
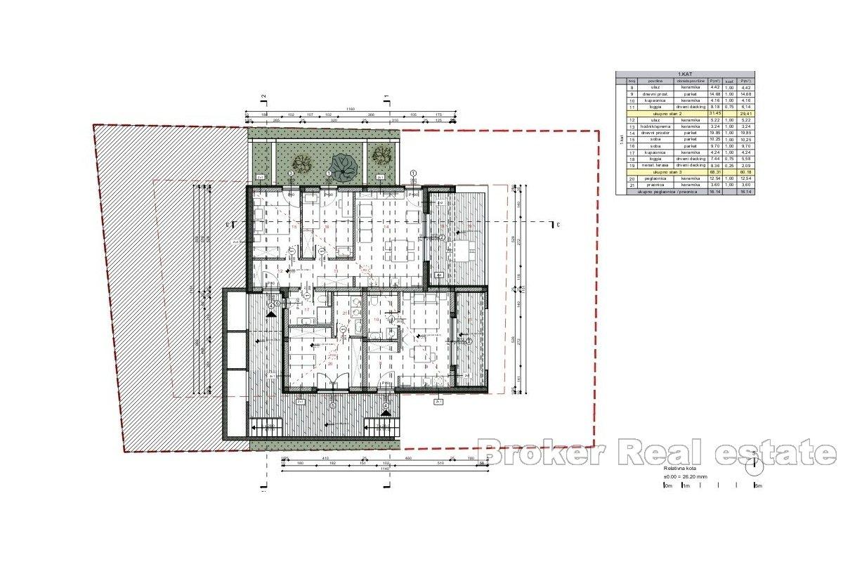
Markpriset inkluderar ett giltigt bygglov för att bygga ett hus med en planyta på 143 m2, för 3 bostäder.
Marken är till största delen förberedd för byggnation, det vill säga kommunala bidrag har betalats och grävningar har gjorts i större utsträckning.
Marken ligger i ett lugnt läge utan många grannar i närheten, det är 400 meter från havet och från centrum av staden med alla ytterligare faciliteter.
Det framtida huset får delvis utsikt över havet från de övre våningarna.
Plats
Brac, Dalmatiens öar
Brač är med en yta på 396 kvadratkilometer den största ön i Dalmatien, och den tredje största ön i Adriatiska havet totalt sett. Brač har en lång och vikt kustlinje med många mindre och större vikar. Särskilt märkbara är de naturliga hamnarna i Supetar, Splitska, Pučišća och Povlja, Sumartin, Milna och Bobovišća.
Letar du efter något annat?








