





Hrvatska, Dalmacija otoci, Brač - Građevno zemljište s projektom za gradnju
ID: 2016/629Osnovni podaci
Zemljište:486 m2
Udaljenost od mora:400 m
O nekretnini
Građevno zemljište s projektom za gradnju, smješteno na sjevernoj strani otoka Brača.
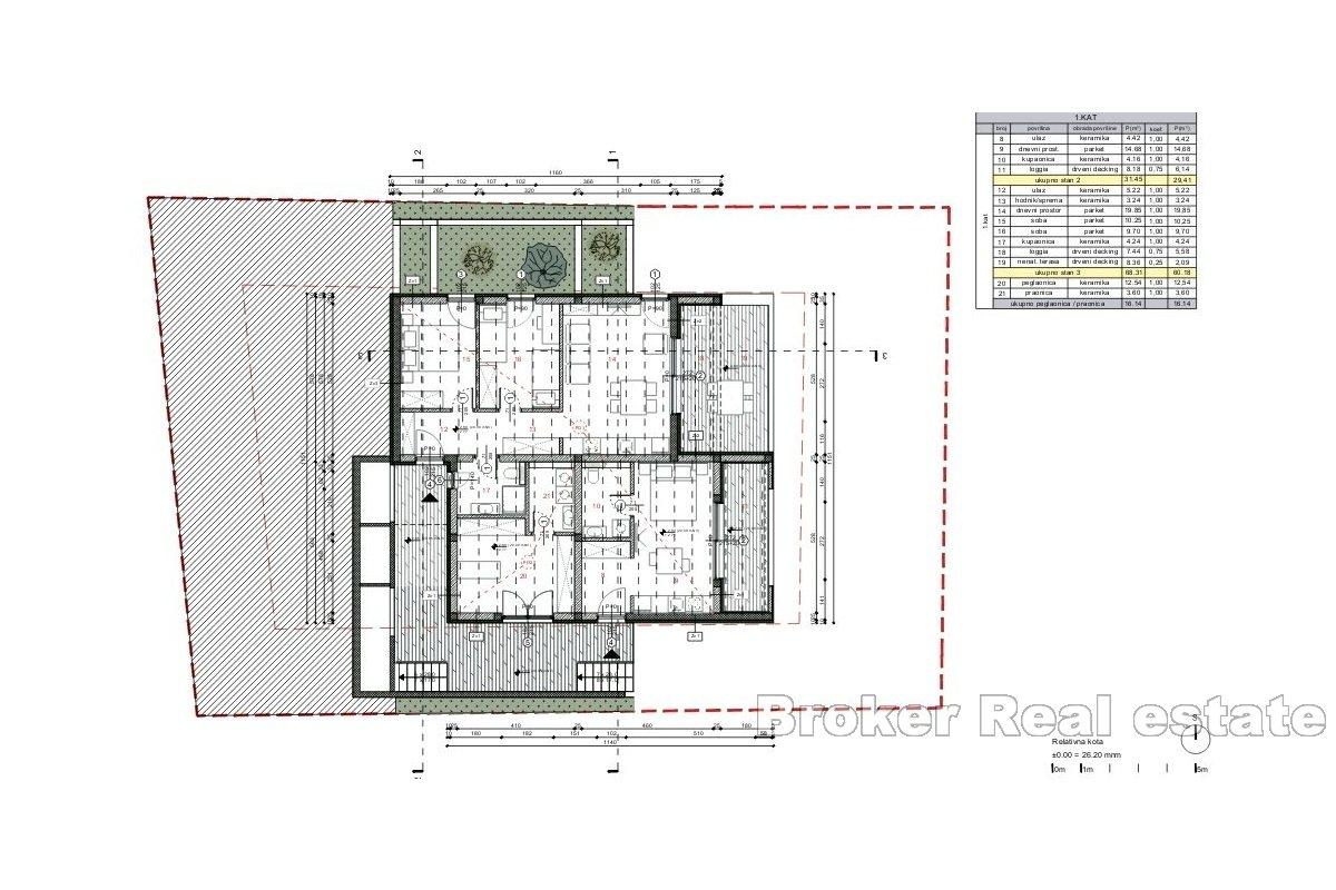
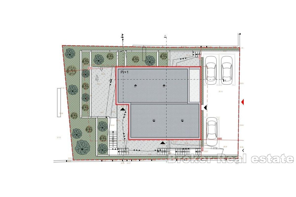
Zemljište je ukupne površine od 486 m2, pravokutnog je oblika te kaskadnog tipa, sa jednostavnim pristupom sa glavnih prometnica.
U cijenu zemljišta ulazi i pravomoćna građevinska dozvola za gradnju kuće tlocrtne površine 143 m2, za 3 stambene jedinice.
Zemljište je većim dijelom pripremljeno za gradnju, odnosno, plaćeni su komunalni doprinosi i napravljeni iskopi u većoj mjeri.
Zemljište se nalazi na mirnoj poziciji bez puno susjeda u blizini, udaljeno je od mora 400 metara kao i od centra mjesta sa svim dodatnim sadržajima.
Buduća kuća će imati parcijalni pogled na more sa gornjih etaža.
Lokacija
Brač, Dalmacija otoci
Brač je s površinom od 396 četvornih kilometara najveći otok u Dalmaciji, te treći po veličini otok u Jadranskom moru. Brač ima dugu i naboranu obalu s brojnim manjim i većim uvalama. Posebno su uočljive prirodne luke Supetar, Splitska, Pučišća, te Povlja, Sumartin, Milna i Bobovišća.
Tražiš li nešto drugo?








