





Croatie, Iles de Dalmatie, Brac - Terrain à bâtir avec projet de construction
ID: 2016/629Informations de base
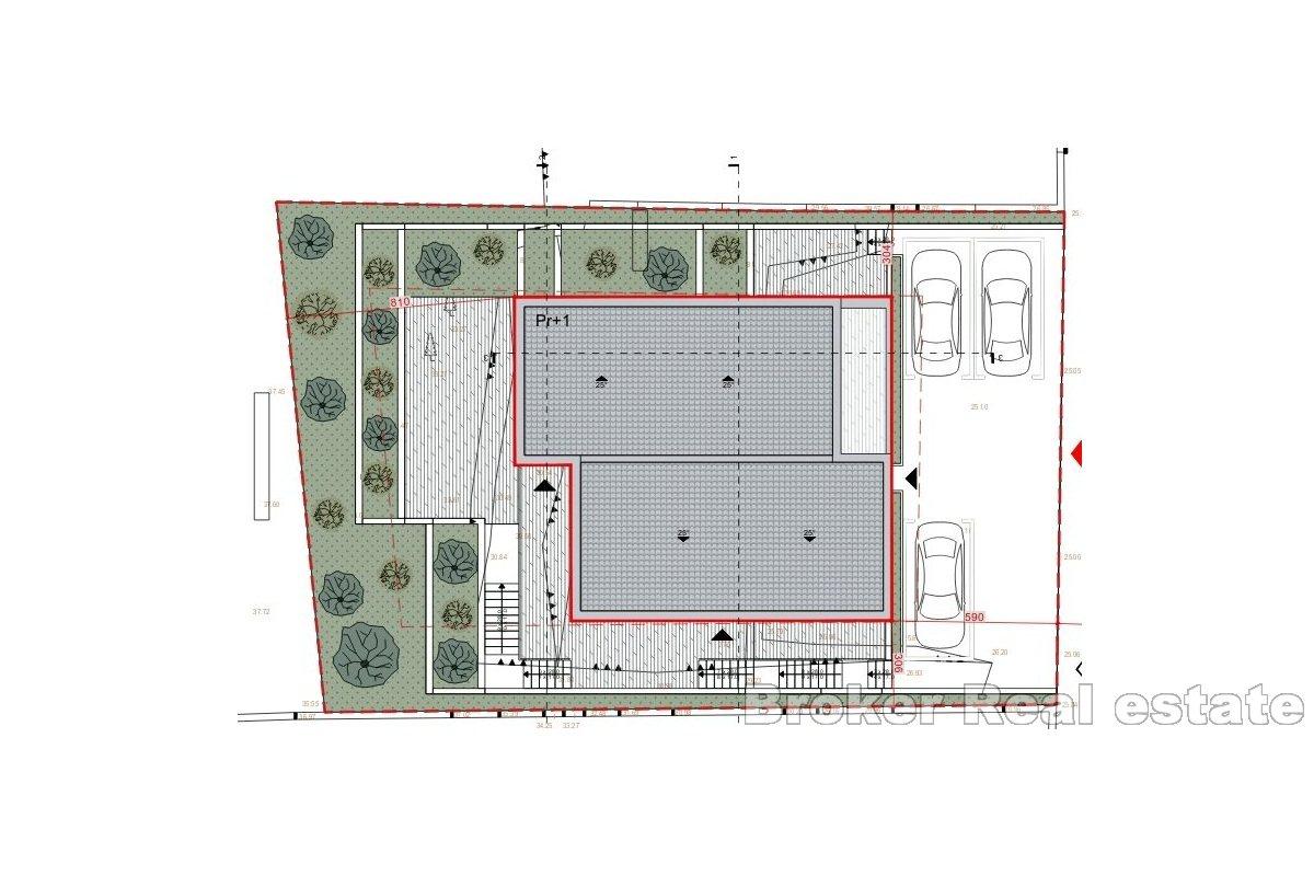
Espace terrestre:486 m2
Distance de la mer:400 m
À propos de la propriété
Terrain à bâtir avec projet de construction, situé sur la côte nord de l’île de Brač.
Le terrain a une superficie totale de 486 m2, est de forme rectangulaire et de type cascade, avec un accès facile depuis les routes principales.
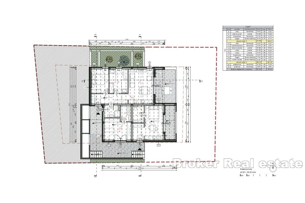
Le prix du terrain comprend un permis de construire valide pour la construction d’une maison d’une superficie de 143 m2, pour 3 unités résidentielles.
Le terrain est en grande partie préparé pour la construction, c’est-à-dire que les contributions communales ont été payées et que les fouilles ont été plus importantes.
Le terrain est situé dans un endroit calme sans beaucoup de voisins à proximité, il se trouve à 400 mètres de la mer et du centre de la ville avec toutes les commodités supplémentaires.
La future maison aura une vue partielle sur la mer depuis les étages supérieurs.
Emplacement
Brac, Iles de Dalmatie
Brač est, avec une superficie de 396 kilomètres carrés, la plus grande île de Dalmatie et la troisième plus grande île de la mer Adriatique. Brač possède un littoral long et plissé avec de nombreuses baies plus petites et plus grandes. Les ports naturels de Supetar, Splitska, Pučišća, Povlja, Sumartin, Milna et Bobovišća sont particulièrement remarquables.
Vous cherchez autre chose?








