





Kroatien, Dalmatiens öar, Hvar - Nybyggnation - duplexlägenhet med terrass, nära havet
ID: 2051/43Basinformation
Boendeyta:100 m2
Markutrymme:14 m2
Sovrum:3
Badrum:2
Avstånd till havet:300 m
Fastighetsfördelar
- Nyproduktion
Bekvämligheter
- Energicertifikat
- Moderna
- Parkering
Om fastigheten
På ön Hvar, i en lugn och trevlig ort känd för sin skyddade vik och välskötta marina, pågår byggnationen av ett nytt bostadsprojekt med totalt 16 lägenheter.
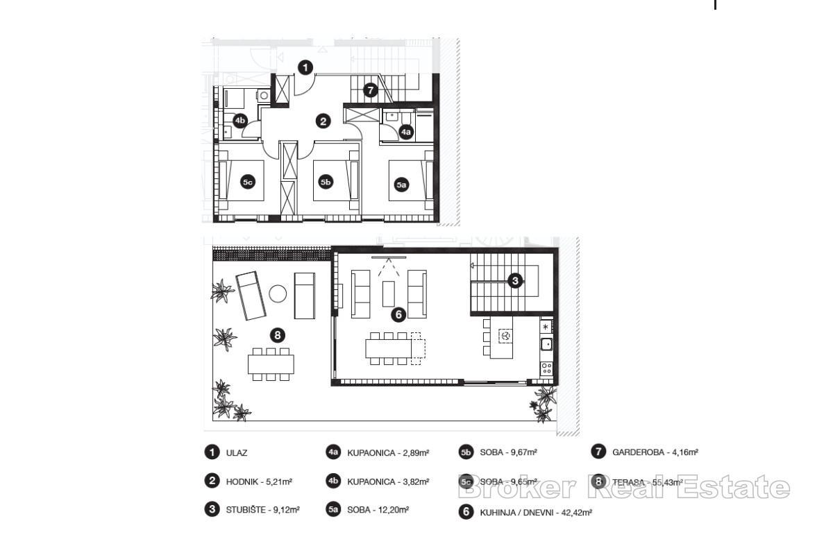
På andra våningen i byggnad B ligger lägenhet S8, med en total nettoyta på 155 m2. Nedre våningen inkluderar en hall med garderob, två sovrum, ett badrum och ett sovrum (ensuite badrum). En intern trappa leder till övervåningen med ett öppet vardagsrum, matsal och kök, varifrån det finns tillgång till en rymlig terrass på 55 m2. Lägenheten har en tvåsidig orientering – NO-SO, vilket ger den gott om naturligt ljus hela dagen.
Projektet erbjuder utomhusparkeringsplatser, varav några kommer att vara täckta.
Byggnationen använder kvalitetsmaterial, förstklassig keramik, armerad betongkonstruktion, ett fasadsystem med värmeisolering, trippelglas, elektriska jalusier, golvvärme i badrummen och luftkonditionering.
Arbetet är planerat att vara klart i början av sommaren 2026. Tack vare läget bara 300 meter från havet och närheten till alla bekvämligheter – butiker, restauranger, kaféer, marina och strandpromenad – är lägenheten ett idealiskt val för året runt-boende eller som en utmärkt investering för turistuthyrning.
* Priset inkluderar moms – köparen är inte skyldig att betala fastighetsskatt
Plats
Hvar, Dalmatiens öar
Hvar är en kroatisk ö i Adriatiska havet, belägen utanför den dalmatiska kusten, som ligger mellan öarna Brač, Vis och Korčula. Dess sluttningar är täckta av tallskogar, med vingårdar, olivlundar, fruktträdgårdar och lavendelfält i jordbruksområdena. Klimatet kännetecknas av milda vintrar och varma somrar med många soltimmar.
Letar du efter något annat?




