





Hrvatska, Dalmacija otoci, Hvar - Novogradnja - dvoetažan stan s terasom, blizina mora
ID: 2051/43Osnovni podaci
Stambeni prostor:100 m2
Zemljište:14 m2
Sobe:3
Kupaonice:2
Udaljenost od mora:300 m
Prednosti nekretnine
- Novogradnja
Pogodnosti
- Energetski certifikat
- Moderno
- Parking
O nekretnini
Na otoku Hvaru u mirnom i ugodnom naselju poznatom po svojoj zaštićenoj uvali i uređenoj marini, u tijeku je izgradnja novog stambenog projekta s ukupno 16 stanova.
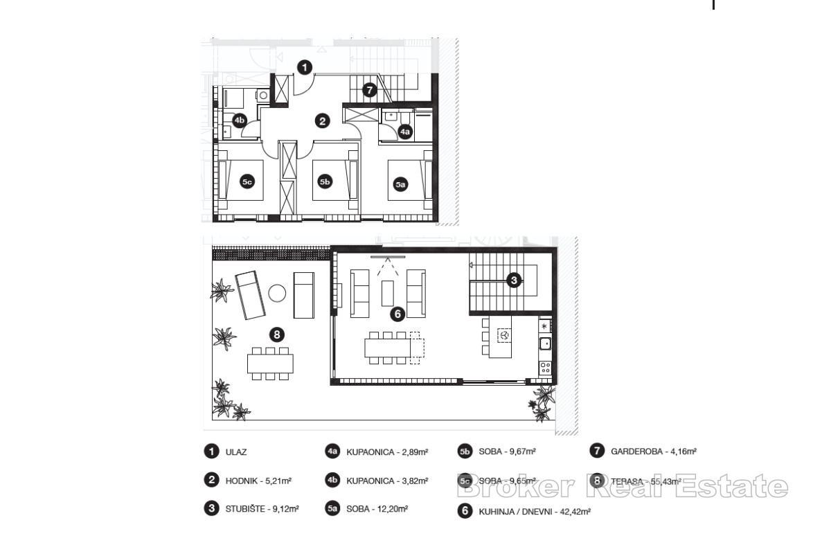
Na drugom katu zgrade B nalazi se stan S8, ukupne neto površine 155 m2. Donja etaža obuhvaća predsoblje s garderobom, dvije spavaće sobe, kupaonicu te master spavaću sobu (vlastita kupaonica). Unutarnje stubište vodi na gornju etažu s otvorenim dnevnim prostorom, blagovaonicom i kuhinjom, iz kojeg se izlazi na prostranu terasu površine 55 m². Stan ima dvostranu orijentaciju- SI- JI, što mu osigurava obilje prirodnog svjetla tijekom cijelog dana.
U sklopu projekta osigurana su vanjska parkirna mjesta, od kojih će dio biti natkriven.
Pri gradnji se koriste kvalitetni materijali, prvoklasna keramika, armirano-betonska konstrukcija, fasadni sustav s toplinskom izolacijom, troslojna stakla, električne rolete tu je i podno grijanje u kupaonicama te klima uređaji.
Završetak radova predviđen je do početka ljeta 2026. godine. Zahvaljujući lokaciji svega 300 metara od mora i blizini svih sadržaja- trgovine, restorana, kafića, marine i šetnice, stan predstavlja idealan izbor za cjelogodišnje stanovanje ili kao izvrsnu investiciju za turistički najam.
* Cijena uključuje PDV- kupac ne snosi obvezu plaćanja poreza na promet nekretnina
Lokacija
Hvar, Dalmacija otoci
Hvar je hrvatski otok u Jadranskom moru, smješten uz dalmatinsku obalu, između otoka Brača, Visa i Korčule. Njegovi obronci prekriveni su borovom šumom, s vinogradima, maslinicima, voćnjacima i poljima lavande na poljoprivrednim površinama. Klimu karakteriziraju blage zime i topla ljeta s mnogo sunčanih sati.
Tražiš li nešto drugo?





