





Kroatien, Dalmatien Inseln, Hvar - Neubau - Maisonette-Wohnung mit Terrasse, in Meeresnähe
ID: 2051/43Grundinformation
Wohnfläche:100 m2
Grundstücksgrösse:14 m2
Schlafzimmer:3
Badezimmer:2
Meeresentfernung:300 m
Immobilienvorteile
- Neubau
Annehmlichkeiten
- Energiezertifikat
- Modern
- Parken
Über die Immobilie
Auf der Insel Hvar, in einer ruhigen und angenehmen Siedlung, die für ihre geschützte Bucht und ihren gepflegten Yachthafen bekannt ist, entsteht ein neues Wohnprojekt mit insgesamt 16 Wohnungen.
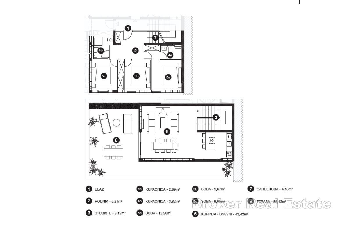
Im zweiten Stock des Gebäudes B befindet sich die Wohnung S8 mit einer Gesamtnettofläche von 155 m². Die untere Etage umfasst einen Flur mit Garderobe, zwei Schlafzimmer, ein Badezimmer und ein Hauptschlafzimmer (mit eigenem Bad). Eine Innentreppe führt in die obere Etage mit offenem Wohnzimmer, Esszimmer und Küche, von wo aus Sie auf eine großzügige, 55 m² große Terrasse gelangen. Die Wohnung ist beidseitig ausgerichtet – Nordosten und Südosten – und bietet dadurch tagsüber viel Tageslicht.
Das Projekt bietet Außenparkplätze, von denen einige überdacht sein werden.
Für die Konstruktion wurden hochwertige Materialien, erstklassige Keramik, Stahlbetonkonstruktion, ein Fassadensystem mit Wärmedämmung, Dreifachverglasung, elektrische Rollläden, Fußbodenheizung in den Bädern und Klimaanlage verwendet.
Die Fertigstellung der Arbeiten ist für Anfang Sommer 2026 geplant. Dank der Lage nur 300 Meter vom Meer entfernt und der Nähe zu allen Annehmlichkeiten – Geschäften, Restaurants, Cafés, Yachthafen und Promenade – ist die Wohnung ideal für ganzjähriges Wohnen oder als hervorragende Investition für die touristische Vermietung.
* Preis inkl. MwSt. – Der Käufer ist nicht grundsteuerpflichtig.
Standort
Hvar, Dalmatien Inseln
Hvar ist eine kroatische Insel in der Adria vor der dalmatinischen Küste und liegt zwischen den Inseln Brač, Vis und Korčula. Seine Hänge sind mit Pinienwäldern bedeckt, mit Weinbergen, Olivenhainen, Obstgärten und Lavendelfeldern in den landwirtschaftlich genutzten Gebieten. Das Klima ist geprägt von milden Wintern und warmen Sommern mit vielen Sonnenstunden.
Suchen Sie etwas anderes?




