





Croatie, Côte de Dalmatie, Dubrovnik - Villa de luxe avec piscine, première rangée de la mer
ID: 2026/91Informations de base
Espace vital:370 m2
Espace terrestre:3000 m2
Chambres:4
Salles de bain:4
Distance de la mer:30 m
Front de mer
Avantages immobiliers
- Vue sur la mer
- Piscine
- De luxe
Commodités
- Certificat énergétique
- Moderne
- Parking
À propos de la propriété
A vendre est une villa jumelée moderne d’une surface habitable totale de 370 m2 près de Dubrovnik, construite sur un terrain de 3000 m2.
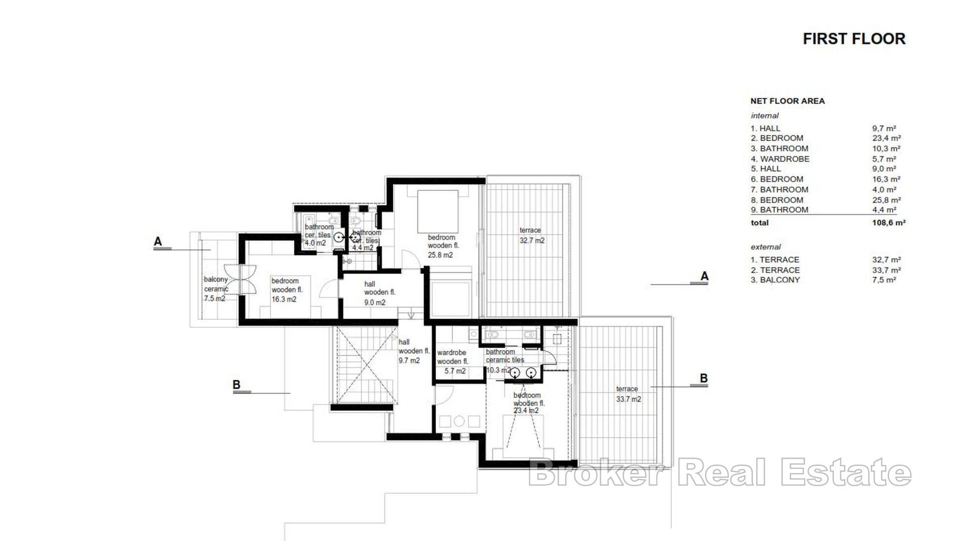
La villa se compose de deux étages et a été construite en 2018.
Au premier étage de la surface habitable totale de 194 m2, il y a un WC, une chambre avec une salle de bain, une cuisine avec une salle à manger et un spacieux salon avec une sortie sur la terrasse avec une magnifique vue dégagée sur la mer.
Sur la grande terrasse de 94 m2 avec mobilier de jardin, il y a une piscine de 30 m2.
Au deuxième étage, d’une surface habitable totale de 109 m2, se trouvent trois chambres, chacune avec sa propre salle de bain.
Deux chambres ont accès à des terrasses d’env. 33 m2.
La conception de la villa est telle que presque chaque pièce offre une vue panoramique unique sur la mer.
La distance du centre de Dubrovnik est de 7 km par voie aérienne.
Il s’agit d’une opportunité exceptionnelle sur le marché qui mérite d’être considérée.
Emplacement
Dubrovnik, Côte de Dalmatie
Dubrovnik est une ville du sud de la Dalmatie, en Croatie, au bord de la mer Adriatique. C'est l'une des destinations touristiques les plus importantes de la Méditerranée, un port maritime et le centre du pays. En 1979, la ville de Dubrovnik a été ajoutée à la liste du patrimoine mondial de l'UNESCO en reconnaissance de son architecture médiévale exceptionnelle et de sa vieille ville fortifiée.
Vous cherchez autre chose?










