





Croatie, Côte de Dalmatie, Rogoznica - Belle villa moderne construite récemment
ID: 2022/153Informations de base
Espace vital:250 m2
Espace terrestre:450 m2
Chambres:5
Salles de bain:4
Planchers:3
Distance de la mer:30 m
Avantages immobiliers
- Vue sur la mer
- Piscine
- Nouvelle construction
- De luxe
Commodités
- Moderne
- Parking
À propos de la propriété
Belle villa moderne construite dans une position unique, deuxième rangée de la mer dans la région de Ražanj, non loin de la ville de Rogoznica.
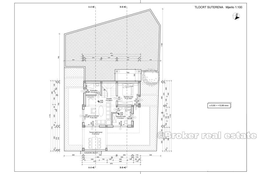
La villa est répartie sur trois étages; rez-de-chaussée, premier et deuxième étage et orientation ouest. Au rez-de-chaussée il y a 2 chambres à coucher, une salle de bains et un salon spacieux avec une sortie une terrasse couverte.
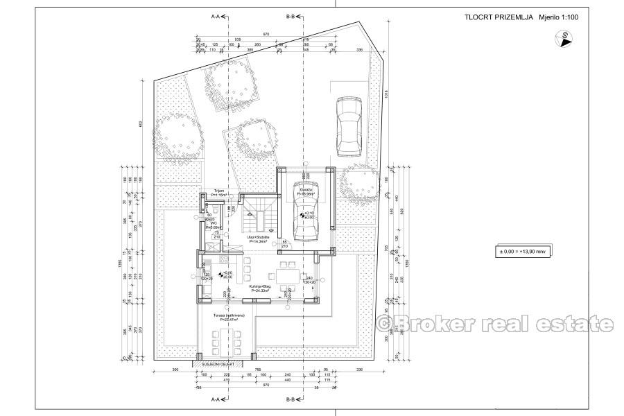
Le premier étage comprend une grande cuisine avec salle à manger, terrasse couverte et toilettes.
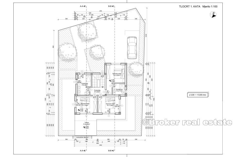
Au deuxième étage, il y a trois chambres dont une avec sortie sur une terrasse et deux salles de bains.
Les trois étages sont reliés par un escalier intérieur.
Au rez-de-chaussée de la villa, il y a une belle piscine extérieure et aux deux autres étages, du côté nord, des places de parking extérieures.
L’achèvement prévu de la construction de la villa d’ici la fin de 2019 et toutes les infrastructures nécessaires (eau, électricité et assainissement sous forme de fosses septiques) sont disponibles sur le terrain.
Le centre de Rogoznica est à 5 km et l’aéroport de Split à 25 km.
Emplacement
Rogoznica, Côte de Dalmatie
Rogoznica est une municipalité et un village touristique populaire de la côte dalmate en Croatie, située dans la partie la plus méridionale du comté de Šibenik-Knin, dans une baie profonde à l'abri du vent, à environ 30 km de Šibenik. On l'appelle parfois Šibenska Rogoznica pour la distinguer de Lokva Rogoznica, une autre station touristique de Dalmatie.
Vous cherchez autre chose?










