





Croatie, Côte de Dalmatie, Sibenik - Appartement d'une chambre à coucher avec une grande terrasse dans le centre ville
ID: 2051/10Informations de base
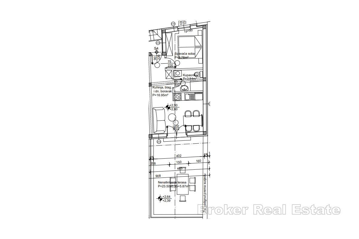
Espace vital:30 m2
Espace terrestre:36 m2
Chambres:1
Salles de bain:1
Planchers:1
Distance de la mer:350 m
Avantages immobiliers
- Nouvelle construction
Commodités
- Certificat énergétique
- Moderne
À propos de la propriété
Dans un excellent emplacement au cœur de Šibenik, à seulement quelques minutes à pied de la célèbre cathédrale Saint-Jacques (UNESCO), de la forteresse Saint-Ivan et de la promenade en bord de mer et de la plage de la ville, un appartement d’une chambre est à vendre situé au premier étage d’un petit immeuble résidentiel.
Cette position attrayante permet une vie paisible à proximité de toutes les commodités importantes, ainsi qu’un accès rapide aux attractions culturelles et touristiques.
L’appartement (30 m²) se compose d’un couloir, d’un espace de vie ouvert avec un salon, une salle à manger et une cuisine, une chambre et une salle de bain.
La valeur ajoutée est apportée par la spacieuse terrasse de 25 m² avec vue sur la ville, qui vous permet de séjourner à l’extérieur dans un environnement privé et paisible.
L’appartement est climatisé, entièrement neuf.
Cette propriété représente une excellente opportunité pour ceux qui recherchent un appartement moderne dans le vieux centre-ville pour leur propre usage ou comme investissement locatif.
Emplacement
Sibenik, Côte de Dalmatie
Šibenik, historiquement connue sous le nom de Sebenico, est une ville historique de Croatie, située en Dalmatie centrale, là où la rivière Krka se jette dans la mer Adriatique. Šibenik est un centre politique, éducatif, de transport, industriel et touristique du comté de Šibenik-Knin, et est également la troisième plus grande ville de la région dalmate.
Vous cherchez autre chose?






