





Croatie, Côte de Dalmatie, Split ville - Penthouse, avec vue sur la ville de Split
ID: 2014/136Informations de base
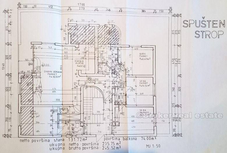
Espace vital:131 m2
Espace terrestre:75 m2
Chambres:4
Salles de bain:5
Planchers:1
Avantages immobiliers
- Vue sur la mer
À propos de la propriété
Un luxueux appartement penthouse de 4 chambres 131 m2 au 5ème étage (le seul appartement au dernier étage) avec d’excellentes vues sur toute la ville, le port, Brac Channel, est-sud-ouest-nord. La superficie totale brute est de 245 m2, net 205 m2, dont surface terrasse est de 74 m2.
Il se compose d’un hall d’entrée, grand séjour 36m2 avec la grande terrasse principale de 74 m2, salle à manger et cuisine avec une sortie séparée à la terrasse, 4 chambres 13/10/15/11 m2 (chambre de maître avec salle de bains), une Grande salle de bain 10 m2 avec terrasse et douche extérieure.
Tout l’appartement est rénové, meublé et équipé avec des matériaux de haute qualité et des appareils, et comme tel est en vente (à l’exception des effets personnels sur demande), chauffage central, 3 air conditionné, parking en face. L’appartement est idéal pour les affaires ou la famille car il est ouvert avec beaucoup d’espace et exsude de luxe. Extrêmement moderne espace en dehors des dimensions standard.
Emplacement
Split ville, Côte de Dalmatie
Split est la deuxième plus grande ville de Croatie après la capitale Zagreb, la plus grande ville de Dalmatie et la plus grande ville de la côte croate. Elle se situe sur la rive orientale de la mer Adriatique et s'étend sur une péninsule centrale et ses environs. Plaque tournante du transport intrarégional et destination touristique prisée, la ville est reliée aux îles de l'Adriatique.
Vous cherchez autre chose?










