





Croatie, Iles de Dalmatie, Vis - Nouvelle construction à Komiža - Appartement avec vue mer et parking
ID: 2051/55Informations de base
Espace vital:65 m2
Espace terrestre:10 m2
Chambres:2
Salles de bain:1
Distance de la mer:400 m
Avantages immobiliers
- Vue sur la mer
- Nouvelle construction
Commodités
- Certificat énergétique
- Moderne
- Parking
À propos de la propriété
Sur l’une des îles dalmates les plus authentiques, l’île de Vis, dans le pittoresque village de Komiža, un nouvel immeuble résidentiel est en construction. Situé au calme, il bénéficie d’un emplacement idéal, à proximité de toutes les commodités.
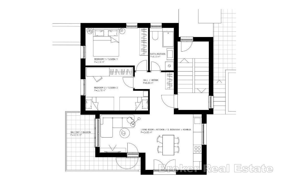
L’appartement, situé au premier étage, offre une surface habitable de 65 m². Il se compose d’un hall d’entrée, d’un vaste séjour ouvert sur la cuisine et la salle à manger, avec accès à un balcon, de deux chambres et d’une salle de bains. Le balcon, exposé plein sud, offre une vue imprenable sur la mer et bénéficie d’une belle luminosité naturelle tout au long de la journée.
L’appartement sera équipé de menuiseries PVC avec volets roulants aluminium, de volets supplémentaires aluminium sur les balcons, de carrelage haut de gamme, de parquet en chêne, de portes d’entrée blindées et de la climatisation. Une place de parking est incluse.
Située dans un environnement paisible, cette propriété se trouve à proximité immédiate du front de mer, des commerces, des restaurants et des cafés. La livraison est prévue pour le début de l’été 2026.
Grâce à la qualité de sa construction, au choix judicieux des matériaux et à son emplacement privilégié, cette propriété est idéale pour y vivre à l’année, mais représente également un investissement sûr avec un fort potentiel locatif touristique.
Komiža est réputée pour sa mer cristalline, sa nature préservée et son authentique ambiance méditerranéenne. Ses ruelles étroites, ses boutiques de souvenirs et ses ateliers d’artistes offrent de nombreuses possibilités de découverte, tandis que les amateurs de vacances actives pourront s’adonner au sport, à la randonnée, à la plongée et aux excursions vers les îles voisines. Malgré sa popularité auprès des plaisanciers, Komiža a su conserver son caractère local et sa douceur de vivre.
Emplacement
Vis, Iles de Dalmatie
L'île habitée la plus éloignée du continent croate, Vis a une superficie de 90,26 kilomètres carrés. Son point culminant est Hum, qui culmine à 587 mètres d'altitude. Les deux plus grandes colonies de l'île sont la ville de Vis, sur la côte est de l'île (la colonie qui a donné son nom à l'origine à l'île) et Komiža, sur sa côte ouest.
Vous cherchez autre chose?







