





Hrvatska, Dalmacija otoci, Hvar - Novogradnja - dvosoban stan s lođom, blizina mora
ID: 2051/45Osnovni podaci
Stambeni prostor:57 m2
Zemljište:5 m2
Sobe:2
Kupaonice:2
Udaljenost od mora:300 m
Prednosti nekretnine
- Novogradnja
Pogodnosti
- Energetski certifikat
- Moderno
- Parking
O nekretnini
Na otoku Hvaru, u mirnom i uređenom naselju poznatom po svojoj zaštićenoj uvali i marini, u tijeku je realizacija novog stambenog projekta koji obuhvaća ukupno 16 stanova.
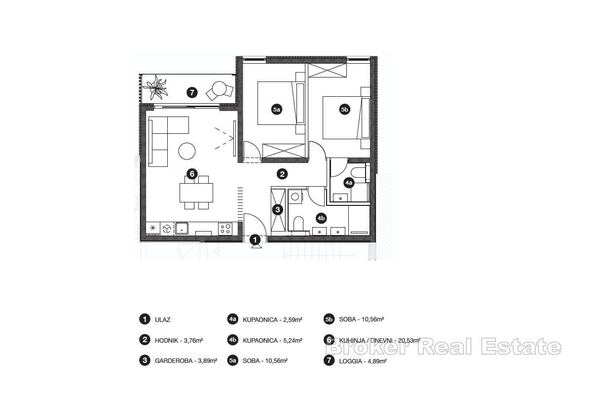
Na prvom katu zgrade B smješten je stan S4 (ukupne neto površine 62 m2) čiji raspored uključuje hodnik s garderobom, dnevni boravak povezan s kuhinjom i blagovaonicom te izlazom na lođu. Slijedi hodnik koji vodi prema dvije spavaće sobe i dvije kupaonice.
U izgradnji se koriste kvalitetni materijali, armirano-betonska konstrukcija, toplinski izolirana fasada, troslojna stakla, električne rolete, podno grijanje u kupaonicama, klima uređaji i visokokvalitetna keramika. U okviru projekta predviđena su vanjska parkirna mjesta, pri čemu će dio biti natkriven. Završetak radova planiran je do početka ljeta 2026. godine.
Projekt je smješten na mirnoj lokaciji, 300 metara od mora, u neposrednoj blizini svih sadržaja- trgovine, restorana, kafića, marine i šetnice. Zahvaljujući položaju i ugodnom ambijentu, ovo je mjesto idealno za život tijekom cijele godine, ali i kao sigurna investicija za turistički najam.
* Cijena uključuje PDV- kupac ne snosi obvezu plaćanja poreza na promet nekretnina
Lokacija
Hvar, Dalmacija otoci
Hvar je hrvatski otok u Jadranskom moru, smješten uz dalmatinsku obalu, između otoka Brača, Visa i Korčule. Njegovi obronci prekriveni su borovom šumom, s vinogradima, maslinicima, voćnjacima i poljima lavande na poljoprivrednim površinama. Klimu karakteriziraju blage zime i topla ljeta s mnogo sunčanih sati.
Tražiš li nešto drugo?







