





Hrvatska, Dalmacija obala, Kaštela - Luksuzni apartmani s pogledom na more
ID: 2022/334Osnovni podaci
Stambeni prostor:73 m2
Zemljište:90 m2
Sobe:2
Kupaonice:1
Udaljenost od mora:1000 m
Prednosti nekretnine
- Pogled na more
- Novogradnja
- Luksuzno
Pogodnosti
- Energetski certifikat
- Moderno
- Parking
O nekretnini
Luksuzni stanovi s pogledom na more u modernoj zgradi u Kaštelima.
Zgrada je izgrađena na kaskadnoj parceli od 700 m2 i prostire se na tri etaže na kojima su smješteni stanovi, svaki sa zasebnim ulazom.
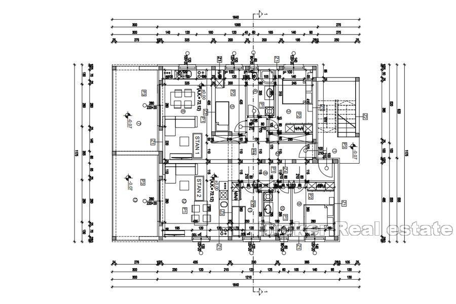
U prizemlju se nalaze dva dvosobna apartmana ukupne površine 73 m2, unutarnje stambene površine 56 m2 sa terasom od 17 m2. Stanovi se sastoje od otvorenog koncepta dnevnog boravka s kuhinjom i blagovaonom, dvije spavaće sobe, jedne kupaonice i ostave. Iz dnevnog boravka izlazi se na terasu sa staklenim kliznim vratima koja osim pogleda na more daje i puno dnevnog svjetla.
Svaki apartman ima vrt od cca 90m2 sa natkrivenom terasom.
Na prvom katu se nalazi apartman ukupne površine 143 m2, unutarnje stambene površine 110 m2 s natkrivenom terasom od 33 m2 s pogledom na more. Stan se sastoji od otvorenog koncepta dnevnog boravka s kuhinjom i blagovaonicom, ostave, jedne kupaonice, tri spavaće sobe od kojih jedna ima wc. Iz dnevnog boravka i kuhinje se izlazi na terasu sa staklenim kliznim stijenama.
Kaštela su drugi po veličini grad u Splitsko-dalmatinskoj županiji. Izgradili su oko sedam utvrda duž obale u Kaštelanskom zaljevu koje karakteriziraju ovo mediteransko područje. Kaštela su jedan od najbolje povezanih gradova pa se osim Međunarodne zračne luke Split u Kaštelima nalazi i željeznički kolodvor u Kaštel Starom te su povezani s autocestom Split-Zagreb.
Doplata za parkirno mjesto: 5000€
• STAN 1 – 73 m2 – 180 000 € (uključena dva parking mjesta)
• STAN 2 – 73 m2 – 155 000 € – PRODANO!
• STAN 3 – 143 m2 – 310 000 € – PRODANO!
• STAN 4 – 143 m2 – 400 000 € – PRODANO!
Lokacija
Kaštela, Dalmacija obala
Kaštela su grad i aglomeracija sedam zasebnih naselja koja su pod upravom jedne općine. Grad se nalazi sjeverozapadno od grada Splita, zapadno od Solina i istočno od Trogira, na obali srednje Dalmacije. Kaštelanski kraj svojim je mediteranskim tonom, slikovitim krajolikom i jedinstvenim prirodnim okruženjem privlačio ljude od prapovijesti.
Tražiš li nešto drugo?






