





Hrvatska, Dalmacija obala, Split grad, Meje - Luksuzan trosoban stan na mirnoj lokaciji
ID: 2035/221Osnovni podaci
Stambeni prostor:120 m2
Zemljište:18 m2
Sobe:3
Kupaonice:3
Katovi:1
Udaljenost od mora:140 m
Prednosti nekretnine
- Pogled na more
- Novogradnja
- Luksuzno
Pogodnosti
- Energetski certifikat
- Garaža
- Moderno
- Parking
O nekretnini
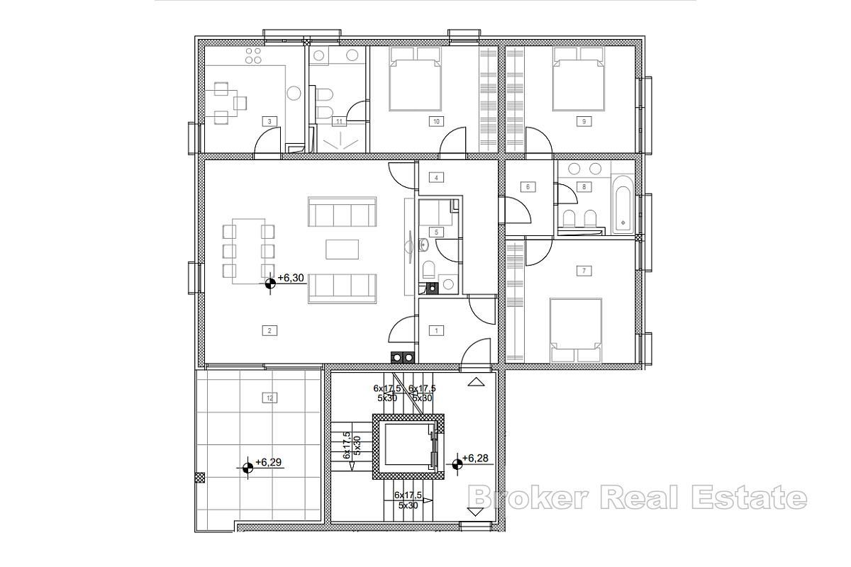
Na prodaju je elegantan i moderno opremljen trosoban stan smješten u vrhunskoj novogradnji na jednoj od najatraktivnijih lokacija u Splitu, na elitnim Mejama. Stan se nalazi na drugom katu stambene zgrade s dizalom te je orijentiran na istok, sjever i zapad, što mu osigurava obilje prirodne svjetlosti tijekom cijelog dana te traženi hlad tokom ljetnih mjeseci.
Ukupna stambena površina od 138,16 m² obuhvaća tri prostrane spavaće sobe, dvije kupaonice, dodatni toalet za goste, ulazni prostor, hodnik i pretprostor. Dnevni dio se sastoji od kuhinje i odvojenog prostranog dnevnog boravka iz kojega se izlazi na veliku natkrivenu terasu s pogledom na more.
Stan je potpuno klimatiziran te opremljen podnim grijanjem koje funkcionira putem visokoučinkovite dizalice topline, osiguravajući optimalnu temperaturu u svim godišnjim dobima. Korišteni su samo najkvalitetniji materijali – parketi i keramika vrhunske klase, sanitarije renomiranih proizvođača te električni podizači roleta u cijelom stanu. Dodatnu sigurnost i komfor pruža video portafon, dok u podzemnoj garaži budući vlasnik ima mogućnost punjenja električnog automobila zahvaljujući instaliranim električnim punjačima.
Uz kupnju stana obvezna je kupnja garažnog parkirnog mjesta u podzemnoj garaži po cijeni od 50 000 €, kao i ostave smještene u podrumu zgrade po cijeni od 25 000 €.
Stan se nalazi u mirnoj mikrolokaciji koja osigurava privatnost i ugodan životni ambijent, a istovremeno je na idealnoj pješačkoj udaljenosti od plaža, prehrambenih trgovina, obrazovnih ustanova te samog centra grada. Ova nekretnina predstavlja izvrsnu priliku kako za obiteljski život, tako i za investiciju s visokim potencijalom turističkog iznajmljivanja.
Lokacija
Split grad, Dalmacija obala
Split je drugi po veličini grad u Hrvatskoj nakon glavnog grada Zagreba, najveći grad u Dalmaciji i najveći grad na hrvatskoj obali. Leži na istočnoj obali Jadranskog mora i prostire se na središnjem poluotoku i njegovoj okolici. Međuregionalno prometno čvorište i popularno turističko odredište, grad je povezan s jadranskim otocima i Apeninskim poluotokom.
Tražiš li nešto drugo?










