





Hrvatska, Dalmacija obala, Zadar okolica - Luksuzni apartmani prvi red do mora
ID: 2021/428Osnovni podaci
Stambeni prostor:152 m2
Zemljište:140 m2
Sobe:3
Kupaonice:3
Udaljenost od mora:10 m
Prvi red
Prednosti nekretnine
- Pogled na more
- Bazen
- Novogradnja
- Luksuzno
Pogodnosti
- Energetski certifikat
- Garaža
- Moderno
- Parking
O nekretnini
Na prodaju nudimo moderna i ekskluzivne apartmane u novogradnji pred prvo useljenje, smještene u prvom redu do mora, na izuzetno traženoj i mirnoj lokaciji svega nekoliko metara od uređene plaže i kristalno čistog mora. Ova novogradnja predstavlja savršen spoj luksuza, kvalitete gradnje i vrhunske pozicije, idealna kako za privatno uživanje tako i kao investicija u turistički najam. Lokacija osigurava mir i privatnost, uz istovremenu blizinu svih važnih sadržaja, uključujući restorane, marinu, trgovine te odličnu prometnu povezanost sa Zadrom i zračnom lukom, udaljenima svega desetak minuta vožnje.
Zgrada je projektirana i građena prema visokim standardima, s naglaskom na funkcionalnost, udobnost i moderan dizajn. Stanarima je na raspolaganju lift, podzemna garaža te pripadajuća spremišta uz svaki apartman, dok dodatnu vrijednost pruža vrhunska oprema i pažljivo odabrani materijali.
Svaki apartman osmišljen je tako da maksimalno iskoristi prirodno svjetlo i atraktivan pogled na more, a prostrane terase, kao i privatni bazeni kod određenih jedinica, dodatno podižu razinu komfora i ekskluzivnosti ove nekretnine.
U ponudi imamo:
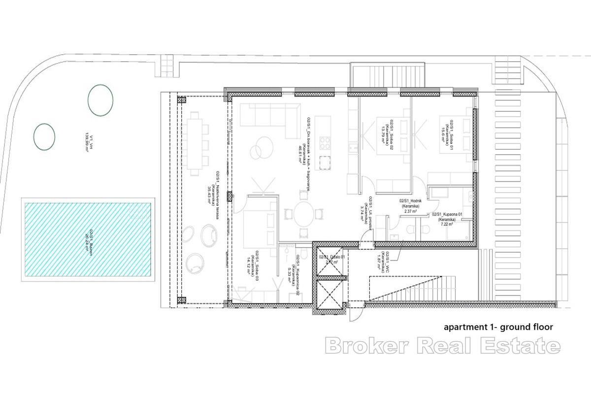
APARTMAN 1 – prizemlje, 152m2
Sastoji se od ulaznog dijela, hodnika, dnevnog boravka s blagovaonicom, kuhinje, tri spavaće sobe, dvije kupaonice, wc-a, natkrivene terase na kojoj možete uživati u zalasku sunca, te sunčane terase s bazenom. Uz stan su uključena i dva garažna parkirna mjesta te ostava. Pristup stanu je omogućen liftom.
APARTMAN 2 – 1. kat – Prodano
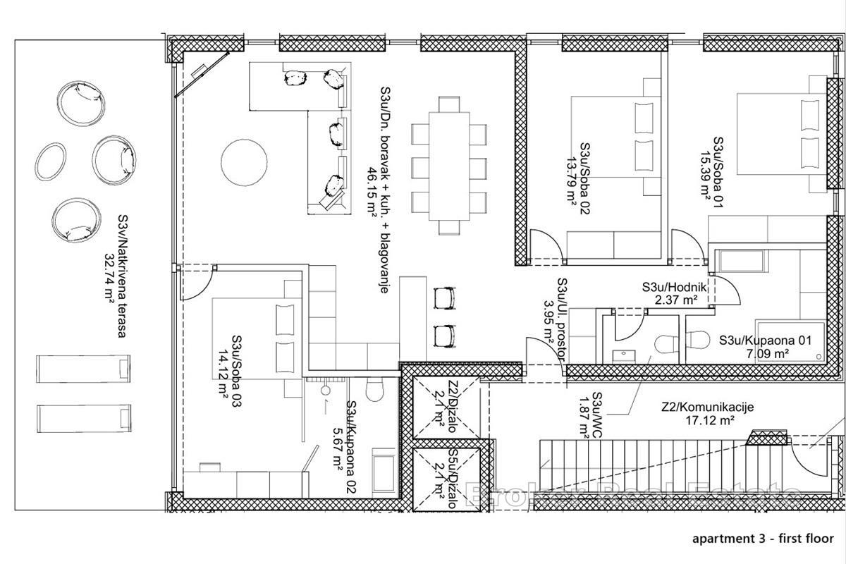
APARTMAN 3 – 1. kat, 134m2
Sastoji se od ulaznog dijela, dnevnog boravka s blagovaonicom, kuhinje, tri spavaće sobe, dvije kupaonice, wc-a, hodnika i natkrivene terase na kojoj možete uživati ljeti. Uz stan idu dva garažna parkirna mjesta i ostava. Pristup stanu je omogućen liftom.
APARTMAN 4 – 1. kat, 128m2
Sastoji se od dnevnog boravka s blagovaonicom, kuhinje, tri spavaće sobe, dvije kupaonice, wc-a i natkrivene terase na kojoj možete uživati ljeti. Uz stan idu dva garažna parkirna mjesta i ostava. Pristup stanu je omogućen liftom.
APARTMAN 5 – Penthouse, 300m2 – rezerviran
Lokacija
Zadar okolica, Dalmacija obala
Zadar okolica je položena tako da zahvaća primorje sjeverne Dalmacije te zaobalje Ravnih kotara, Bukovice, Pozrmanja i Južne Like. Obalno područje obuhvaća široki pojas od grada Biograd na Moru do planine Velebit. Kopneno zaobalje čini prostrani uravnjeni prostor Ravnih kotara. Cijelo područje je odlično cestovno povezano suvremenom autocestom.
Tražiš li nešto drugo?










