





Croazia, Isole Dalmazia, Ciovo - Appartamenti con piscina e terrazza panoramica in costruzione
ID: 2035/106Informazioni di base
Spazio vitale:110 m2
Spazio terrestre:34 m2
Camere da letto:3
Bagni:2
Piani:1
Distanza dal mare:550 m
Vantaggi della proprietà
- Vista sul mare
- Piscina
- Nuova costruzione
Dotazioni
- Certificato energetico
- Moderna
- Parcheggio
Sulla proprietà
In vendita sono appartamenti moderni con vista parziale sul mare a Okrug Gornji, a Čiovo. Si trovano a soli 10 minuti a piedi dal centro del paese e da tutti i servizi dell’isola che ne fanno un luogo attraente. Gli appartamenti sono orientati a ovest e si trovano in un edificio residenziale di 3 piani in totale.
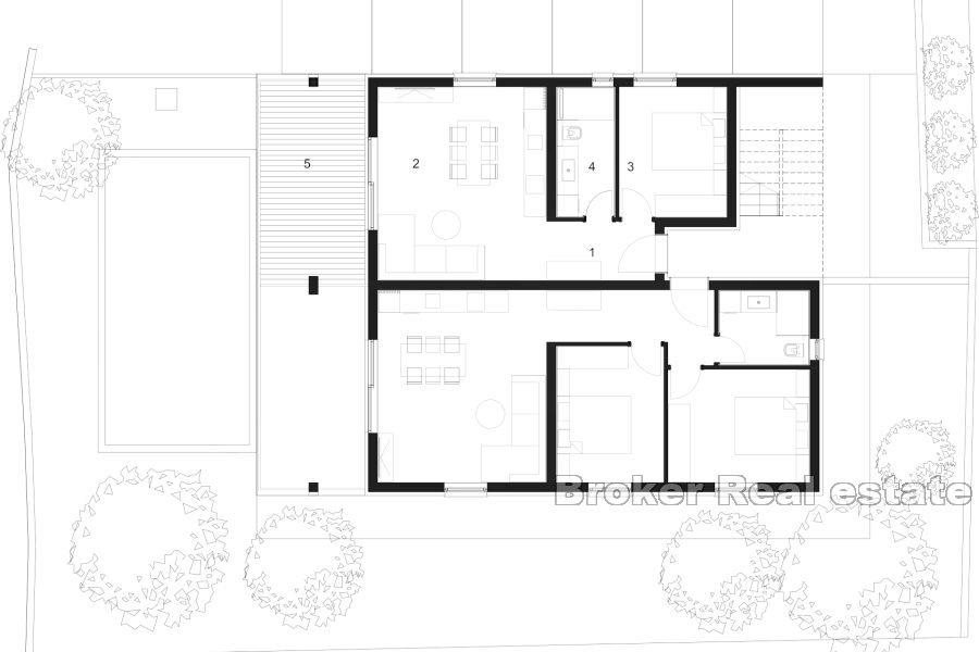
Su ogni piano c’è un appartamento con tre camere da letto con due bagni e un ampio terrazzo o balcone. L’appartamento al piano terra dispone di piscina e giardino, mentre l’appartamento all’ultimo piano ha accesso ad una terrazza sul tetto che può essere attrezzata a piacere. Sono previsti posti auto esterni scoperti retrostanti l’immobile, di cui due posti auto di pertinenza di ciascun appartamento. L’investitore offre anche la possibilità di dividere gli appartamenti su tutti i piani in un appartamento con una camera da letto e uno con due camere da letto, ciascuno con un bagno. In questo caso il trilocale al piano terra avrà piscina e giardino, mentre gli attici condivideranno una terrazza sul tetto.
Nella costruzione verranno utilizzati materiali di ottima qualità e il riscaldamento e il raffrescamento avverranno attraverso tre condizionatori in ogni appartamento.
Gli appartamenti sono un’ottima scelta data la vicinanza di tutti i servizi e dell’aeroporto, che dista solo 10 km.
Opzione 1:
PIANO TERRA
S1 – 110,39 m² + terrazza 34,50 m² + giardino con piscina 205,50 m² – 370 656 €
PRIMO PIANO:
S2 – 110,39 m² + terrazzo 34,50 m² – 321 336 €
SECONDO PIANO:
S3 – 110,39 m² + terrazza 34,50 m² + terrazza sul tetto 159,53 m² – 417 048 € – VENDUTO!
Opzione 2:
PIANO TERRA:
S1a – 47,30 m² + terrazza 17,25 m² – 171 300 € – VENDUTO!
S2b – 61,92 m² + terrazza 17,25 m² + giardino con piscina 205,50 m² – 273 300 € – VENDUTO!
PRIMO PIANO:
S2a – 47,30 m² + terrazzo 17,25 m² – 171 300 € – VENDUTO!
S2b – 61,92 m² + terrazza 17,25 m² – 213 700 € – VENDUTO!
SECONDO PIANO:
S3a – 47,30 m² + terrazza 17,25 m² + terrazza sul tetto 71,59 m² – 223 200 € – VENDUTO!
S3b – 61,92 m² + terrazza 17,25 m² + terrazza sul tetto 71,59 m² – 265 600 € – VENDUTO!
Posizione
Ciovo, Isole Dalmazia
Čiovo si trova nella Dalmazia centrale, proteggendo la città di Trogir e il golfo di Kaštela. Nella parte settentrionale è collegata alla terraferma da due ponti, un ponte si trova nel centro storico di Trogir, e parte di Trogir si estende sull'isola. Oltre alla parte di Trogir, sull'isola ci sono diversi villaggi: Arbanija, Žedno, Okrug Gornji, Okrug Donji e Slatine.
Stai cercando qualcos'altro?










