





Kroatien, Dalmatien Inseln, Ciovo - Wohnungen mit Pool und Dachterrasse im Bau
ID: 2035/106Grundinformation
Wohnfläche:110 m2
Grundstücksgrösse:34 m2
Schlafzimmer:3
Badezimmer:2
Etagen:1
Meeresentfernung:550 m
Immobilienvorteile
- Meerblick
- Schwimmbad
- Neubau
Annehmlichkeiten
- Energiezertifikat
- Modern
- Parken
Über die Immobilie
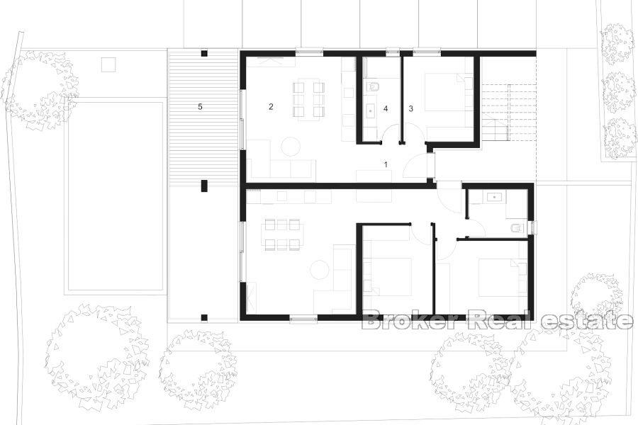
Zum Verkauf stehen moderne Wohnungen mit teilweisem Meerblick in Okrug Gornji, auf Čiovo. Sie liegen nur 10 Gehminuten vom Stadtzentrum und allen Einrichtungen der Insel entfernt, die sie zu einem attraktiven Ort machen. Die Wohnungen haben eine westliche Ausrichtung und befinden sich in einem Wohnhaus mit insgesamt 3 Etagen.
Auf jeder Etage befindet sich ein Apartment mit drei Schlafzimmern, zwei Badezimmern und einer großzügigen Terrasse oder einem Balkon. Die Wohnung im Erdgeschoss verfügt über einen Pool und einen Garten, während die Wohnung im Dachgeschoss Zugang zu einer Dachterrasse hat, die nach Wunsch ausgestattet werden kann. Hinter dem Gebäude wird es nicht überdachte Parkplätze im Freien geben, von denen zwei zu jeder Wohnung gehören. Der Investor bietet außerdem die Möglichkeit, die Wohnungen auf allen Etagen in eine Ein-Zimmer-Wohnung und eine Zwei-Zimmer-Wohnung mit jeweils einem Badezimmer aufzuteilen. In diesem Fall verfügt die Zwei-Zimmer-Wohnung im Erdgeschoss über einen Swimmingpool und einen Garten, während sich die Penthouse-Wohnungen eine Dachterrasse teilen.
Beim Bau werden hochwertige Materialien verwendet und die Heizung und Kühlung erfolgt über drei Klimaanlagen in jeder Wohnung.
Aufgrund der Nähe zu allen Annehmlichkeiten und dem nur 10 km entfernten Flughafen sind die Apartments eine ausgezeichnete Wahl.
Option 1:
ERDGESCHOSS
S1 – 110,39 m² + Terrasse 34,50 m² + Garten mit Pool 205,50 m² – 370.656 €
ERSTE STOCK:
S2 – 110,39 m² + Terrasse 34,50 m² – 321.336 €
ZWEITER STOCK:
S3 – 110,39 m² + Terrasse 34,50 m² + Dachterrasse 159,53 m² – 417.048 € – VERKAUFT!
Option 2:
ERDGESCHOSS:
S1a – 47,30 m² + Terrasse 17,25 m² – 171.300 € – VERKAUFT!
S2b – 61,92 m² + Terrasse 17,25 m² + Garten mit Pool 205,50 m² – 273.300 € – VERKAUFT!
ERSTE STOCK:
S2a – 47,30 m² + Terrasse 17,25 m² – 171.300 € – VERKAUFT!
S2b – 61,92 m² + Terrasse 17,25 m² – 213.700 € – VERKAUFT!
ZWEITER STOCK:
S3a – 47,30 m² + Terrasse 17,25 m² + Dachterrasse 71,59 m² – 223.200 € – VERKAUFT!
S3b – 61,92 m² + Terrasse 17,25 m² + Dachterrasse 71,59 m² – 265.600 € – VERKAUFT!
Standort
Ciovo, Dalmatien Inseln
Čiovo liegt in Mitteldalmatien und schützt die Stadt Trogir und den Golf von Kaštela. Im nördlichen Teil ist sie über zwei Brücken mit dem Festland verbunden, eine Brücke befindet sich im alten Zentrum von Trogir und ein Teil von Trogir erstreckt sich auf die Insel. Außer dem Teil von Trogir gibt es auf der Insel mehrere Dörfer: Arbanija, Žedno, Okrug Gornji, Okrug Donji und Slatine.
Suchen Sie etwas anderes?










