





Croazia, Isole Dalmazia, Ciovo - Casa a un piano con giardino e garage
ID: 2049/41Informazioni di base
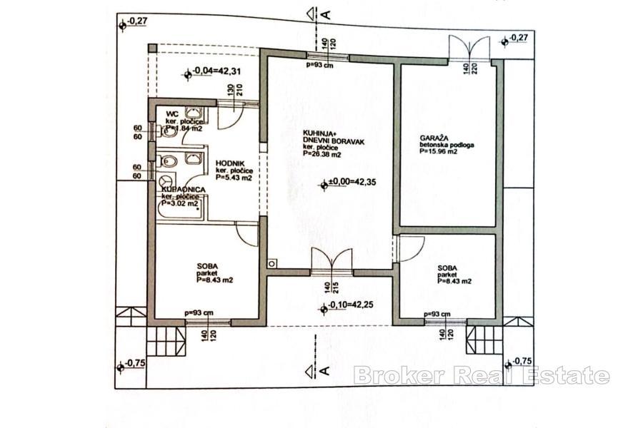
Spazio vitale:118 m2
Camere da letto:2
Bagni:1
Piani:1
Distanza dal mare:350 m
Dotazioni
- Certificato energetico
- Garage
- Parcheggio
Sulla proprietà
In una posizione tranquilla a Okrug Gornji, non lontano da Traù, si trova una casa a un piano di 118 m², situata su un terreno di 417 m².
La casa comprende due camere da letto, un ampio soggiorno collegato alla cucina e alla sala da pranzo, un bagno e una terrazza soleggiata. È immersa nel verde, con un cortile e un giardino.
Sono inoltre disponibili un garage e due posti auto esterni.
La casa necessita di ristrutturazione e investimenti aggiuntivi. C’è anche la possibilità di ammodernare l’edificio.
Si trova a circa cinque minuti a piedi dalla spiaggia e tutti i servizi di base sono nelle vicinanze.
Posizione
Ciovo, Isole Dalmazia
Čiovo si trova nella Dalmazia centrale, proteggendo la città di Trogir e il golfo di Kaštela. Nella parte settentrionale è collegata alla terraferma da due ponti, un ponte si trova nel centro storico di Trogir, e parte di Trogir si estende sull'isola. Oltre alla parte di Trogir, sull'isola ci sono diversi villaggi: Arbanija, Žedno, Okrug Gornji, Okrug Donji e Slatine.
Stai cercando qualcos'altro?






