





Hrvatska, Dalmacija otoci, Čiovo - Prizemnica s okućnicom i garažom
ID: 2049/41Osnovni podaci
Stambeni prostor:118 m2
Sobe:2
Kupaonice:1
Katovi:1
Udaljenost od mora:350 m
Pogodnosti
- Energetski certifikat
- Garaža
- Parking
O nekretnini
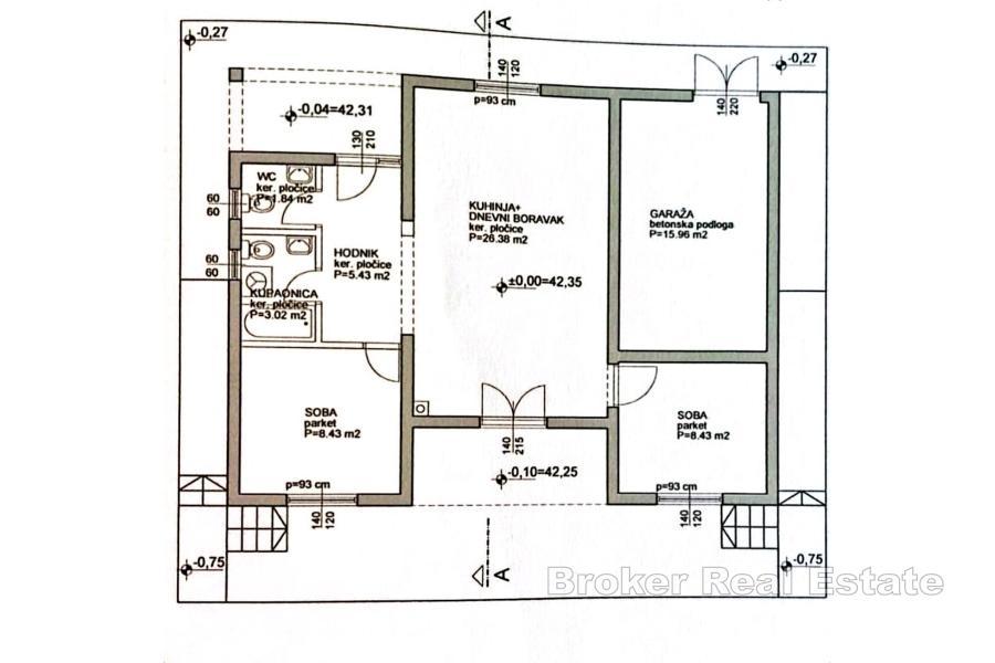
Na mirnoj lokaciji u Okrugu Gornjem, nedaleko od Trogira, nalazi se prizemna kuća površine 118 m2, smještena na parceli od 417 m2.
Kuća obuhvaća dvije spavaće sobe, prostrani dnevni boravak povezan s kuhinjom i blagovaonicom, kupaonicu te osunčanu terasu. Okružena je zelenilom, s dvorištem i vrtom.
Na raspolaganju su i garaža te dva vanjska parkirna mjesta.
Kuća zahtijeva uređenje i dodatna ulaganja. Također postoji mogućnost nadogradnje objekta.
Udaljena je oko pet minuta hoda od plaže, a svi osnovni sadržaji nalaze se u blizini.
Lokacija
Čiovo, Dalmacija otoci
Čiovo se nalazi u srednjoj Dalmaciji, štiteći grad Trogir i Kaštelanski zaljev. Svojim sjevernim dijelom povezan je s kopnom s dva mosta, jedan most je u staroj jezgri Trogira, a zapravo se dio Trogira prostire na otoku. Osim dijela Trogira, na otoku se nalazi nekoliko naselja: Arbanija, Žedno, Okrug Gornji, Okrug Donji i Slatine.
Slične nekretnine
Tražiš li nešto drugo?





