





Croazia, Costa Dalmazia, Kastela, Kaštel Novi - Ampio terreno con permesso di costruire
ID: 2041/116Informazioni di base
Spazio terrestre:1300 m2
Distanza dal mare:700 m
Vantaggi della proprietà
- Vista sul mare
Sulla proprietà
In vendita un terreno edificabile di 1.300 m² con permesso di costruire, situato in una zona tranquilla e soleggiata. Sebbene non vi sia una vista aperta sul mare dal piano terra, la futura proprietà costruita ai piani superiori godrà di una splendida vista sul mare e sul paesaggio circostante.
Il terreno ha una forma regolare, che consente una pianificazione e un utilizzo ottimali degli spazi. Una comoda strada di accesso conduce al terreno e le infrastrutture necessarie – elettricità, acqua e fognature – si trovano nelle immediate vicinanze.
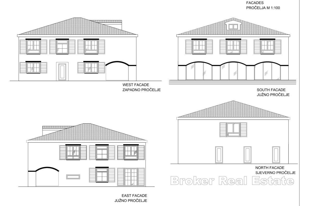
Secondo il progetto esistente, per il quale è stato rilasciato il permesso di costruire, la proprietà avrebbe una superficie lorda abitabile di circa 400 m², distribuita tra piano terra e primo piano. A questo punto è possibile modificare completamente il progetto. Il lotto può essere diviso in due e si possono costruire due proprietà separate.
La posizione offre tranquillità e privacy, pur essendo vicina a tutti i servizi essenziali per una vita confortevole, come negozi, scuole, spiagge e trasporti pubblici.
Questo terreno rappresenta un’eccellente opportunità di investimento grazie alla sua posizione, alle possibilità edificabili e alla futura vista mare. È ideale per la realizzazione di un progetto di villa di lusso con piscina, una casa vacanze o una residenza per famiglie da vivere tutto l’anno.
Posizione
Kastela, Costa Dalmazia
Kaštela è una città e un agglomerato di sette insediamenti individuali amministrati come un unico comune. La città si trova a nord-ovest della città di Spalato, a ovest di Solin e ad est di Trogir, sulla costa della Dalmazia centrale. La regione di Kaštela con il suo tono mediterraneo, il paesaggio pittoresco e l'ambiente naturale unico attirava gli abitanti fin dalla preistoria.
Stai cercando qualcos'altro?










