





Kroatia, Dalmatia kysten, Peljesac - To roms leilighet
ID: 4615/30Grunnleggende informasjon
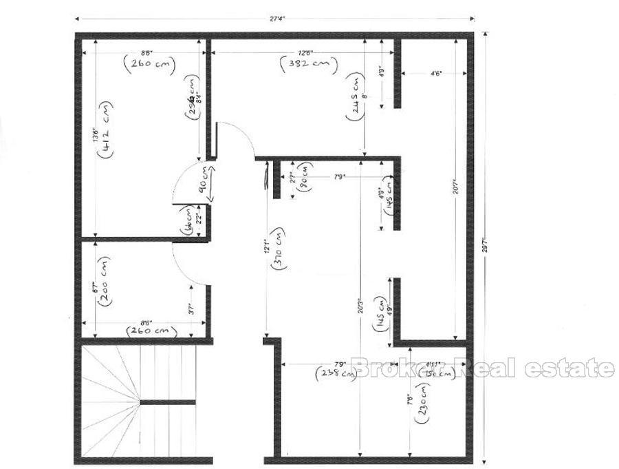
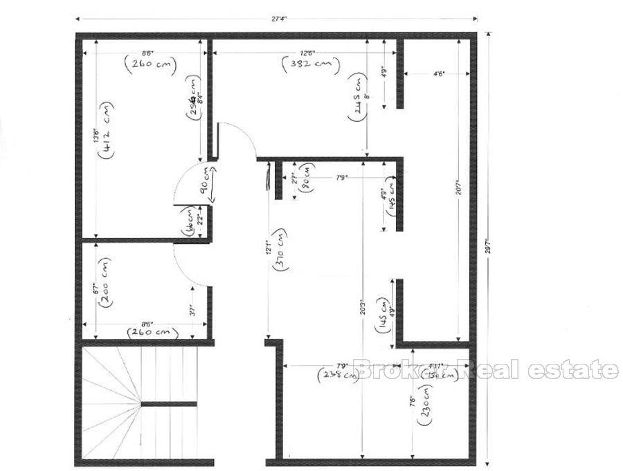
Leveplass:56 m2
Soverom:2
Bad:1
Sjøavstand:250 m
Eiendomsfordeler
- Havutsikt
- Nybygg
Fasiliteter
- Energisertifikat
- Parkering
Om eiendommen
To roms leilighet ligger i leiligheten huset på 6 leiligheter, på den andre (øverste) etasje, til høyre for trappen. Det er en parkeringsplass ved siden av inngangsdøren. Den har 56m2 boareal og består av en gang, bad, 2 soverom, stue med kjøkken hvor det er tilgang til balkongen. På venstre side er havutsikten og på høyre St. Ilija fjell. Det er ca 250 meter til havet og 30 meter fra hovedveien gjennom Orebic med butikker, restauranter etc. i sentrum av byen.
Lokasjon
Peljesac, Dalmatia kysten
Pelješac er en halvøy i det sørlige Dalmatia i Kroatia. Fra landtangen som begynner ved Ston, til toppen av Kapp Lovišta, er den 65 km lang. Pelješac-broen spenner over havkanalen mellom Komarna på det nordlige fastlandet og halvøya Pelješac, og passerer dermed helt gjennom kroatisk territorium og unngår grenseoverganger til Bosnia-Hercegovina ved Neum.
Leter du etter noe annet?






