





Croatie, Côte de Dalmatie, Peljesac - Appartement à deux chambres
ID: 4615/30Informations de base
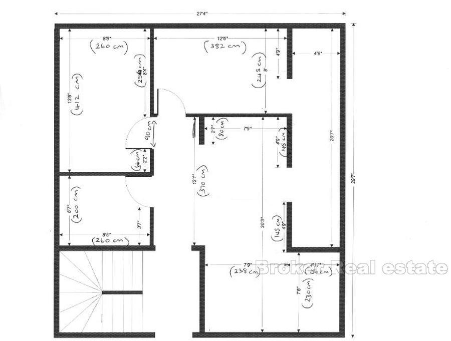
Espace vital:56 m2
Chambres:2
Salles de bain:1
Distance de la mer:250 m
Avantages immobiliers
- Vue sur la mer
Commodités
- Certificat énergétique
- Parking
À propos de la propriété
Appartement de deux chambres est situé dans la maison d’appartements de 6 appartements, sur le second (dernier) étage, à droite de l’escalier. Il y a une place de parking à côté de la porte d’entrée. Il a 56m2 de surface habitable et se compose d’un couloir, salle de bains, 2 chambres, salle de séjour avec cuisine où il y a accès au balcon. Sur le côté gauche est la vue sur la mer et sur la droite de montagne St. Ilija. Il est à environ 250 mètres du front de mer et à 30 mètres de la route principale à travers Orebic avec des magasins, des restaurants, etc. dans le centre de la ville.
Emplacement
Peljesac, Côte de Dalmatie
Pelješac est une péninsule du sud de la Dalmatie en Croatie. De l'isthme qui commence à Ston jusqu'au sommet du cap Lovišta, il s'étend sur 65 km. Le pont de Pelješac enjambe le canal maritime entre Komarna, au nord du continent, et la péninsule de Pelješac, traversant ainsi entièrement le territoire croate et évitant tout passage frontalier avec la Bosnie-Herzégovine à Neum.
Vous cherchez autre chose?






