





Kroatia, Dalmatia kysten, Split område - Leiligheter under bygging med havutsikt
ID: 2040/18Grunnleggende informasjon
Leveplass:94 m2
Soverom:3
Bad:2
Sjøavstand:200 m
Eiendomsfordeler
- Havutsikt
- Nybygg
Fasiliteter
- Energisertifikat
- Parkering
Om eiendommen
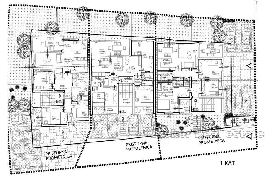
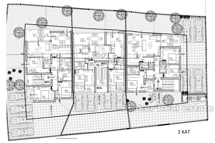
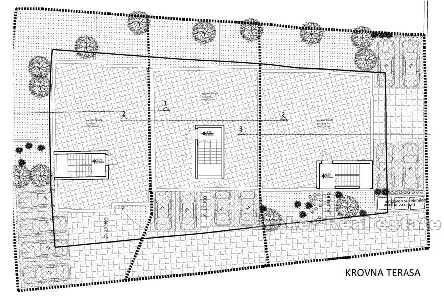
I forhåndssalg har vi 9 leiligheter under bygging nær Split med havutsikt.
Den eksepsjonelle beliggenheten til bygningen gir privatliv og fred, de første butikkene er noen få minutters gange fra bygningen. Byen Split ligger 5 minutter unna med bil, mens byen Omis er ca. 20 minutter unna med bil.
Den attraktive antrasitt- og hvitfargen på fasaden sammen med det grønne landskapet tilbys som en utmerket estetisk designkombinasjon.
Fullføring av alle arbeider er planlagt høsten 2023.
I forhåndssalgstilbud har vi:
Leilighet 1: 49,46 m2 + parkeringsplass = 137 000 € – SOLGT!
Leilighet 2: 54,16 m2 + parkeringsplass = 146 500 € – SOLGT!
Leilighet 3: 56,84 m2 + parkeringsplass = 156 000 € – SOLGT!
Leilighet 4: 94,16 m2 + parkeringsplass = 253 000 €
Leilighet 5: 100,24 m2 + parkeringsplass = 259 000 €
Leilighet 6: 105,43 m2 + parkeringsplass = 288 000 € – SOLGT!
Leilighet 7: 120,26 m2 + parkeringsplass + takterrasse = 321 000 € – SOLGT!
Leilighet 8: 128,58 m2 + parkeringsplass + takterrasse = 329 500 € – SOLGT!
Leilighet 9: 134,34 m2 + parkeringsplass + takterrasse = 367 000 € – SOLGT!
Lokasjon
Split område, Dalmatia kysten
Det bredere området av Split inkluderer et område på omtrent 10 km rundt byen Split. I det området er det også større bosetninger som Solin, Klis, Kučine, Stobreč, Žrnovnica og Podstrana. Selv om bosetningene ved siden av Split forvaltes som separate, utgjør de én funksjonell enhet, det vil si et urbant tettsted.
Leter du etter noe annet?








