





Chorwacja, Dalmacja wybrzeże, Split miasto - Dom z śródziemnomorskim ogrodem
ID: 4240/30Podstawowe informacje
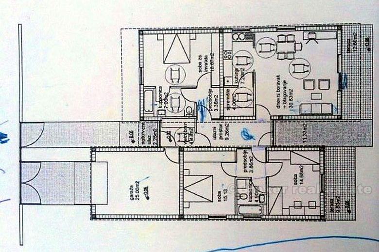
Przestrzeń życiowa:204 m2
Przestrzeń lądowa:801 m2
Sypialnie:3
Zalety nieruchomości
- Widok morza
Udogodnienia
- Certyfikat Energetyczny
O nieruchomości
Dom (nowo wybudowany w 2004 r.) Został zbudowany w stylu amerykańskiego w samym sercu Marjana otoczony pięknym śródziemnomorskim ogrodem, obszar mieszkalny o powierzchni 204 m2 + ogród o powierzchni 801 m2. Składa się z 3 sypialni (1 z wanną z hydromasażem), dużego salonu z kuchnią i jadalnią, pomieszczenia gospodarczego, dwóch dużych tarasów i garażu pod domem.
Lokalizacja
Split miasto, Dalmacja wybrzeże
Split to drugie co do wielkości miasto Chorwacji po stolicy Zagrzebiu, największe miasto w Dalmacji i największe miasto na chorwackim wybrzeżu. Leży na wschodnim brzegu Morza Adriatyckiego i rozciąga się na środkowym półwyspie i jego okolicach. Miasto, będące wewnątrzregionalnym węzłem komunikacyjnym i popularnym kierunkiem turystycznym, ma połączenie z wyspami adriatyckimi i Półwyspem Apenińskim.
Szukasz czegoś innego?





