Mimo trh

Mimo trh





Chorvatsko, Dalmátské pobřeží, Split město - Dům se středomořskou zahradou
ID: 4240/30Cena€599,000
ID: 4240/30
Základní informace
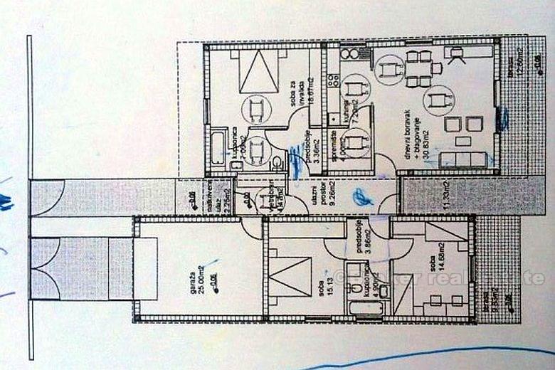
Obytný prostor:204 m2
Pozemní prostor:801 m2
Ložnice:3
Výhody nemovitosti
- Výhled na moře
Vybavení
- Energetický certifikát
O nemovitosti
Dům (nově postavený v roce 2004) byl postaven americký styl v srdci Marjan obklopen krásnou středomořskou zahradou, obytná plocha 204 m2 + zahrada 801 m2. Skládá se ze 3 ložnic (1 s připojenou vanou), velkého obývacího pokoje s kuchyňským a jídelním koutem, pracovny, dvou velkých teras a garáže pod domem.
Umístění
Split město, Dalmátské pobřeží
Split je po hlavním městě Záhřebu druhé největší město Chorvatska, největší město v Dalmácii a největší město na chorvatském pobřeží. Leží na východním pobřeží Jaderského moře a rozkládá se na centrálním poloostrově a jeho okolí. Vnitroregionální dopravní uzel a oblíbená turistická destinace, město je spojeno s jadranskými ostrovy a Apeninským poloostrovem.
Hledáte něco jiného?





