





Chorwacja, Chorwacja kontynentalna, Zagreb miasto - Mieszkanie w elitarnej części miasta, na sprzedaż
ID: 4142/30Podstawowe informacje
Przestrzeń życiowa:101 m2
Sypialnie:2
Łazienki:2
Podłogi:1
Udogodnienia
- Garaż
O nieruchomości
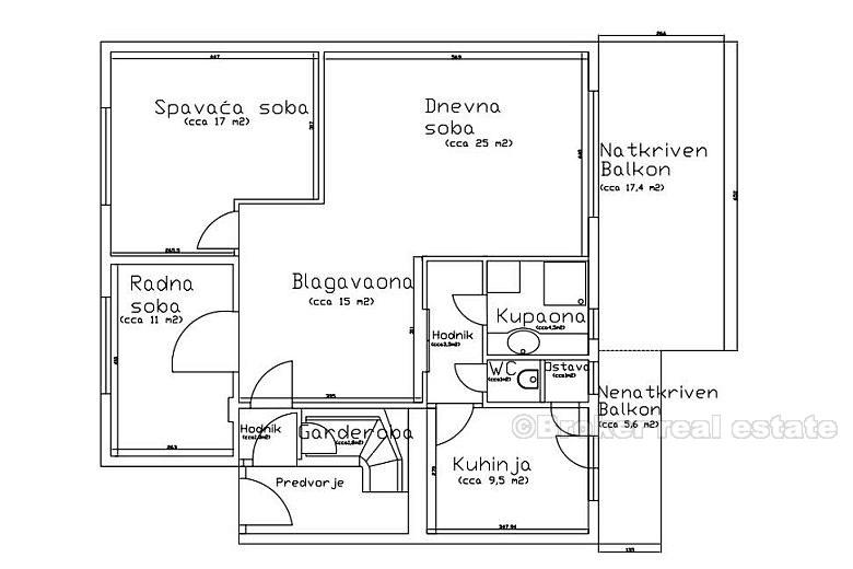
Mieszkanie w elitarnej części miasta, o powierzchni 91 m2 i 23 m2 taras na pierwszym piętrze. Składa się z dwóch sypialni, pokoju dziennego, jadalni, kuchni, łazienki, toalety i magazynu. Apartament znajduje się na pierwszym piętrze. Powyżej znajduje się inny piętro z poddaszem i apartament na parterze. Umeblowane (wszystkie nowe meble) i najnowsze regulowane – po renowacji nikt nie mieszkał w mieszkaniu. Centralne ogrzewanie gazem, wszystkie nowe okablowanie, system antywłamaniowy, klimatyzacja. Widok z balkonu na wschód, w kierunku ogrodu, nie ma domu z przodu, ponieważ przed ogródkiem tak, że może być na i opalać. Pokoje są na zachodzie. Zadaszona część balkonu 17,4 m2 i niezmieszana część 5,6 m2, ogród 240 m2, garaż składowany 30m2. Mieszkanie, meble, ogród i garaż można nabyć osobno.
Lokalizacja
Zagreb miasto, Chorwacja kontynentalna
Zagrzeb jest stolicą i największym miastem Chorwacji. Leży na północy kraju, nad rzeką Sawą, na południowych stokach góry Medvednica. Zagrzeb leży w pobliżu międzynarodowej granicy między Chorwacją a Słowenią. Zagrzeb jest ważnym ośrodkiem turystycznym, nie tylko pod względem pasażerów podróżujących z reszty Europy nad Morze Adriatyckie, ale także jako cel podróży sam w sobie.
Szukasz czegoś innego?










