





Croatie, Croatie continentale, Zagreb ville - Appartement dans la partie élite de la ville, à vendre
ID: 4142/30Informations de base
Espace vital:101 m2
Chambres:2
Salles de bain:2
Planchers:1
Commodités
- Garage
À propos de la propriété
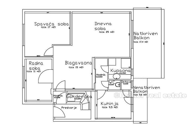
Appartement dans la partie élite de la ville, une superficie de 91 m2 et terrasse de 23 m2 au premier étage. Il se compose de deux chambres, salon, salle à manger, cuisine, salle de bains, wc et rangement. L’appartement est situé au premier étage. Au-dessus, il y a un autre étage avec un loft et un appartement au rez-de-chaussée. Meublé (tous les meubles neufs) et le dernier réglementé – après la rénovation, personne n’a vécu dans l’appartement. Chauffage central au gaz, tout nouveau câblage, système anti-vol, climatisation. La vue du balcon à l’est, vers le jardin, pas de maison en face parce que le jardin avant afin qu’il puisse et prendre le soleil. Les chambres sont situées à l’ouest. Partie couverte du balcon 17,4 m2 et partie non arborée de 5,6 m2, jardin 240 m2, garage avec rangement 30m2. L’appartement, le mobilier, le jardin et le garage peuvent être achetés séparément.
Emplacement
Zagreb ville, Croatie continentale
Zagreb est la capitale et la plus grande ville de Croatie. C'est au nord du pays, le long de la rivière Sava, sur le versant sud de la montagne Medvednica. Elle se situe près de la frontière entre la Croatie et la Slovénie. Zagreb est un centre touristique important, non seulement en termes de voyages depuis le reste de l'Europe vers la mer Adriatique, mais aussi en tant que destination elle-même.
Vous cherchez autre chose?










