





Hrvatska, Dalmacija obala, Split grad - Gripe, Penthouse, s pogledom na grad Split
ID: 2014/136Osnovni podaci
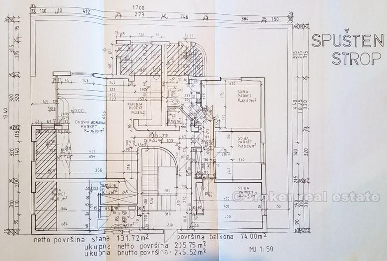
Stambeni prostor:131 m2
Zemljište:75 m2
Sobe:4
Kupaonice:5
Katovi:1
Prednosti nekretnine
- Pogled na more
O nekretnini
Luksuzan četverosoban penthouse-stan 131 m2 na 5. katu zgrade (jedini stan na vrhu zgrade) sa vrhunskim pogledom na cijeli grad, gradsku luku, Brački kanal, istok-jug-zapad-sjever. Brutto ukupna površina stana je 245 m2, netto 205 m2, od toga površina terasa 74 m2.
Stan se sastoji od ulaznog prostora, velikog dnevnog boravka 36m2 sa glavnim izlazom na veliku terasu od 74 m2, blagovaonicom i kuhinjom sa odvojenim izlazom na terasu, 4 spavaće sobe od 13/10/15/11 m2 (master soba sa kupatilom), veliko kupatilo 10 m2 sa izlazom na terasu i vanjski tuš. Cijeli stan je renoviran, opremljen i namješten vrlo kvalitetnim materijalima i aparatima, te se kao takav prodaje (izuzev osobnim stvari po dogovoru), centralno grijanje na struju, 3 klima uređaja, parking ispred zgrade. Stan je idealan za poslovnu ili obiteljsku namjenu jer je otvoren sa puno prostora i odiše luksuzom. Izuzetno moderan prostor, izvanstandardnih dimenzija, kao i same ponude u gradu Splitu.
Lokacija
Split grad, Dalmacija obala
Split je drugi po veličini grad u Hrvatskoj nakon glavnog grada Zagreba, najveći grad u Dalmaciji i najveći grad na hrvatskoj obali. Leži na istočnoj obali Jadranskog mora i prostire se na središnjem poluotoku i njegovoj okolici. Međuregionalno prometno čvorište i popularno turističko odredište, grad je povezan s jadranskim otocima i Apeninskim poluotokom.
Tražiš li nešto drugo?










