





Kroatien, Dalmatiens öar, Ciovo - Modern radhusvilla med havsutsikt
ID: 2035/228Basinformation
Boendeyta:130 m2
Markutrymme:110 m2
Sovrum:3
Badrum:3
Golv:3
Avstånd till havet:290 m
Fastighetsfördelar
- Havsutsikt
- Nyproduktion
- Lyxigt
Bekvämligheter
- Energicertifikat
- Moderna
- Parkering
Om fastigheten
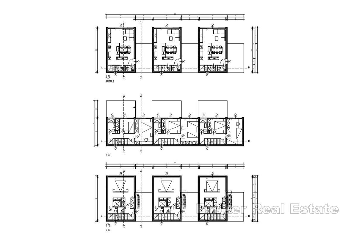
En modern radhusvilla till salu med vacker havsutsikt, belägen i ett attraktivt läge på ön Čiovo. Villan, med en total boyta på 129,92 m², ligger på en rymlig tomt på 766 m², som den delar med två andra byggnader. Byggnaden sträcker sig över tre våningar, och tack vare den noggrant planerade utformningen av rummen och stora glasöppningar ger den rikligt med naturligt ljus och en känsla av luftighet. Det finns också en trädgård i trädgården, som erbjuder många alternativ för inredning enligt kundens önskemål – från en utomhuslounge till en grillplats, en jacuzzi eller en liten pool.
På bottenvåningen i byggnaden finns ett rymligt vardagsrum med öppen planlösning, matplats och ett vardagsrum med direkt tillgång till trädgården. Denna våning innehåller dessutom en gästtoalett, och en intern trappa leder till första våningen där det finns två bekväma sovrum. Ett av rummen har tillgång till egen balkong, medan båda delar ett modernt badrum med kvalitetskernamik och sanitetsartiklar som köparen kan välja efter egna önskemål. På översta våningen finns ett rymligt sovrum som erbjuder maximal komfort och avskildhet. Rummet har ett eget badrum, en rymlig klädkammare och tillgång till en stor terrass med fantastisk havsutsikt. Villan är utrustad med golvvärme i badrummen och luftkonditionering i alla rum, vilket möjliggör en bekväm vistelse året runt. Den säljs omöblerad, vilket ger den framtida ägaren friheten att möblera den efter egen smak och stil. Anläggningen inkluderar även en utomhusparkeringsplats, och alla element relaterade till inredning och utvändig dekoration kan överenskommas ytterligare med investeraren, inklusive installation av en swimmingpool eller specialtillverkade möbler.
Alla nödvändiga bekvämligheter som butiker, restauranger, kaféer och andra tjänster finns i omedelbar närhet, i stadens centrum, medan flygplatsen bara ligger 9 kilometer bort. Tack vare närheten till stranden och det kristallklara havet representerar villan en utmärkt lösning för en familjesemester, men också som en investering för turistuthyrning, med tanke på den höga efterfrågan på lyxboende i denna del av Dalmatien.
Plats
Ciovo, Dalmatiens öar
Čiovo ligger i centrala Dalmatien och skyddar staden Trogir och Kaštelabukten. På sin norra del är den ansluten till fastlandet med två broar, en bro är i den gamla stadskärnan i Trogir, och en del av Trogir breder ut sig på ön. Förutom delen av Trogir finns det flera byar på ön: Arbanija, Žedno, Okrug Gornji, Okrug Donji och Slatine.
Letar du efter något annat?







