





Chorwacja, Dalmacja Wyspy, Ciovo - Nowoczesna willa szeregowa z widokiem na morze
ID: 2035/228Podstawowe informacje
Przestrzeń życiowa:130 m2
Przestrzeń lądowa:110 m2
Sypialnie:3
Łazienki:3
Podłogi:3
Odległość morska:290 m
Zalety nieruchomości
- Luksusowa
- Nowoczesna
- Widok morza
Udogodnienia
- Certyfikat Energetyczny
- Nowy build
- Parking
O nieruchomości
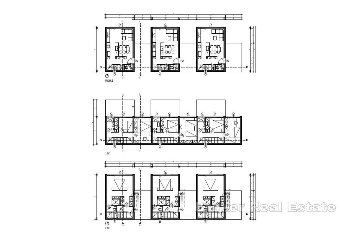
Nowoczesna willa szeregowa na sprzedaż z pięknym widokiem na morze, położona w atrakcyjnej lokalizacji na wyspie Čiovo. Willa o całkowitej powierzchni użytkowej 129,92 m² położona jest na przestronnej działce o powierzchni 766 m², którą dzieli z dwoma innymi budynkami. Budynek rozciąga się na trzech piętrach. Dzięki starannie zaplanowanemu układowi pomieszczeń i dużym przeszklonym otworom, zapewnia dużo naturalnego światła i poczucie lekkości. Na terenie ogrodu znajduje się również ogród, który daje liczne możliwości aranżacji według życzeń klienta – od kącika wypoczynkowego na świeżym powietrzu po strefę grillową, jacuzzi lub mały basen.
Na parterze budynku znajduje się przestronny, otwarty salon z jadalnią i strefą wypoczynkową z bezpośrednim wyjściem do ogrodu. Na tym piętrze znajduje się również toaleta dla gości, a wewnętrzne schody prowadzą na pierwsze piętro, gdzie znajdują się dwie wygodne sypialnie. Jeden z pokoi ma dostęp do własnego balkonu, natomiast obydwa pokoje mają wspólną nowoczesną łazienkę z wysokiej jakości ceramiką i urządzeniami sanitarnymi, którą nabywca może wybrać według własnych życzeń. Na najwyższym piętrze znajduje się przestronna sypialnia główna, która zapewnia maksymalny komfort i prywatność. W pokoju znajduje się prywatna łazienka, przestronna garderoba i dostęp do dużego tarasu z zachwycającym widokiem na morze. Willa wyposażona jest w ogrzewanie podłogowe w łazienkach i klimatyzację we wszystkich pomieszczeniach, co pozwala na komfortowy pobyt przez cały rok. Mieszkanie jest sprzedawane bez mebli, co daje przyszłemu właścicielowi swobodę w umeblowaniu go według własnego gustu i stylu. Obiekt posiada również jedno zewnętrzne miejsce parkingowe, a wszelkie elementy związane z aranżacją wnętrza i elewacji mogą zostać dodatkowo uzgodnione z inwestorem, łącznie z montażem basenu lub mebli na zamówienie.
Wszystkie niezbędne udogodnienia, takie jak sklepy, restauracje, kawiarnie i inne usługi, znajdują się w bezpośrednim sąsiedztwie, w centrum miasta, a lotnisko jest oddalone o zaledwie 9 kilometrów. Dzięki bliskości plaży i krystalicznie czystemu morzu, willa jest doskonałym rozwiązaniem na rodzinne wakacje, ale także inwestycją pod wynajem turystyczny, biorąc pod uwagę wysoki popyt na luksusowe zakwaterowanie w tej części Dalmacji.
Lokalizacja
Ciovo, Dalmacja Wyspy
Čiovo położone jest w środkowej Dalmacji, chroniąc miasto Trogir i zatokę Kaštela. W północnej części jest połączony z lądem dwoma mostami, jeden most znajduje się w starym centrum Trogiru, a część Trogiru rozciąga się na wyspę. Oprócz części Trogiru, na wyspie znajduje się kilka wiosek: Arbanija, Žedno, Okrug Gornji, Okrug Donji i Slatine.
Szukasz czegoś innego?







