





Croatie, Iles de Dalmatie, Ciovo - Villa mitoyenne moderne avec vue mer
ID: 2035/228Informations de base
Espace vital:130 m2
Espace terrestre:110 m2
Chambres:3
Salles de bain:3
Planchers:3
Distance de la mer:290 m
Avantages immobiliers
- Vue sur la mer
- Nouvelle construction
- De luxe
Commodités
- Certificat énergétique
- Moderne
- Parking
À propos de la propriété
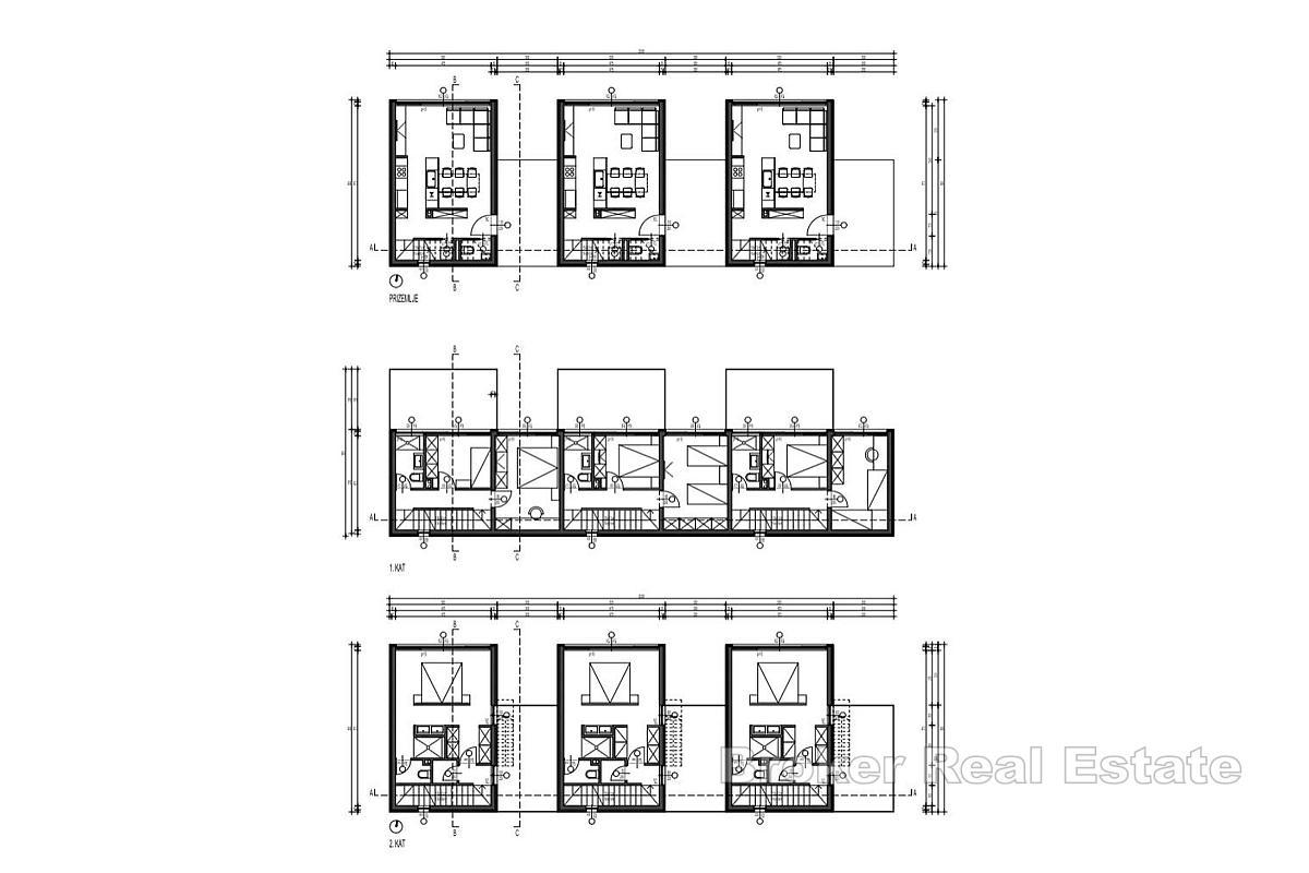
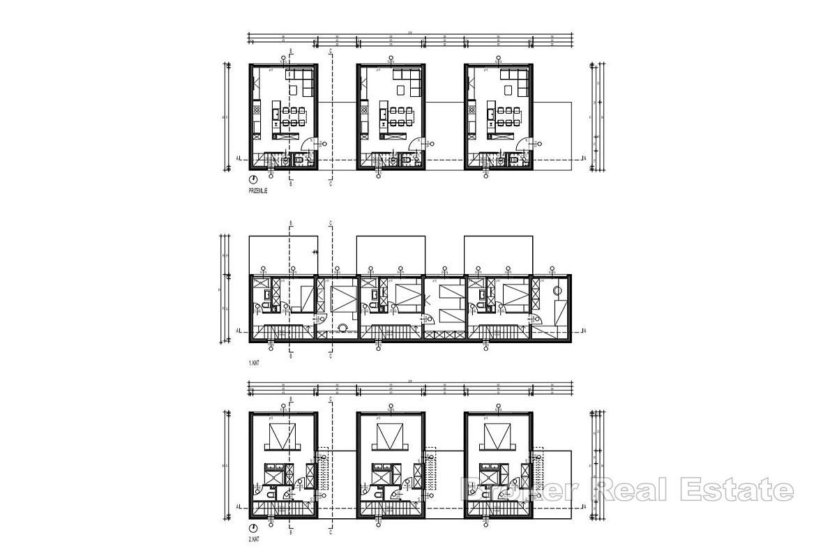
Une villa mitoyenne moderne à vendre avec une belle vue sur la mer, située dans un endroit attrayant sur l’île de Čiovo. La villa, d’une superficie habitable totale de 129,92 m², est située sur un terrain spacieux de 766 m², qu’elle partage avec deux autres bâtiments. Le bâtiment s’étend sur trois étages et, grâce à la disposition soigneusement planifiée des pièces et aux grandes ouvertures vitrées, il offre beaucoup de lumière naturelle et une sensation de légèreté. Il y a également un jardin dans le jardin, qui offre de nombreuses possibilités de décoration selon les souhaits du client – d’un coin salon extérieur à un espace barbecue, un jacuzzi ou une petite piscine.
Au rez-de-chaussée du bâtiment se trouve un spacieux salon à aire ouverte avec un coin repas et un coin salon avec accès direct au jardin. Cet étage comprend également des toilettes invités et un escalier intérieur mène au premier étage où se trouvent deux chambres confortables. L’une des chambres a accès à son propre balcon, tandis que les deux partagent une salle de bain moderne avec des céramiques et des sanitaires de qualité que l’acheteur peut choisir selon ses propres souhaits. Au dernier étage, se trouve une spacieuse chambre principale qui offre un maximum de confort et d’intimité. La chambre comprend une salle de bain privée, un dressing spacieux et un accès à une grande terrasse avec une vue imprenable sur la mer. La villa est équipée de chauffage au sol dans les salles de bains et de climatisation dans toutes les pièces, ce qui permet un séjour confortable tout au long de l’année. Il est vendu non meublé, ce qui laisse au futur propriétaire la liberté de l’aménager selon son propre goût et son style. L’établissement comprend également une place de parking extérieure, et tous les éléments liés à la décoration intérieure et extérieure peuvent être convenus ultérieurement avec l’investisseur, y compris l’installation d’une piscine ou de meubles sur mesure.
Toutes les installations nécessaires telles que magasins, restaurants, cafés et autres services sont situées à proximité immédiate, au centre de la ville, tandis que l’aéroport est à seulement 9 kilomètres. Grâce à la proximité de la plage et de la mer cristalline, la villa représente une excellente solution pour des vacances en famille, mais aussi comme investissement pour la location touristique, compte tenu de la forte demande d’hébergement de luxe dans cette partie de la Dalmatie.
Emplacement
Ciovo, Iles de Dalmatie
Ciovo est situé en Dalmatie centrale et protège la ville de Trogir et le golfe de Kaštela. Dans sa partie nord, elle est reliée au continent par deux ponts, l'un d'entre eux se trouvant dans le vieux centre de Trogir et une partie de Trogir s'étend actuellement sur l'île. Outre la partie de Trogir, l'île compte plusieurs villages : Arbanija, Žedno, Okrug Gornji, Okrug Donji et Slatine.
Vous cherchez autre chose?







