





Kroatia, Dalmatia øyene, Ciovo - Moderne rekkehusvilla med havutsikt
ID: 2035/228Grunnleggende informasjon
Leveplass:130 m2
Land plass:110 m2
Soverom:3
Bad:3
Etasjer:3
Sjøavstand:290 m
Eiendomsfordeler
- Havutsikt
- Nybygg
- Luksus
Fasiliteter
- Energisertifikat
- Moderne
- Parkering
Om eiendommen
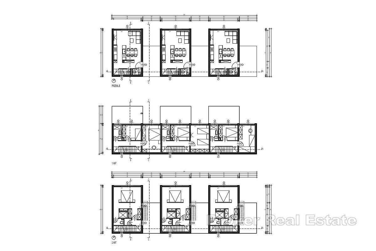
En moderne rekkehusvilla til salgs med vakker utsikt over havet, beliggende i en attraktiv beliggenhet på øya Čiovo. Villaen, med et totalt boareal på 129,92 m², ligger på en romslig tomt på 766 m², som den deler med to andre bygninger. Bygningen strekker seg over tre etasjer, og takket være den nøye planlagte utformingen av rommene og store glassåpninger, gir den rikelig med naturlig lys og en følelse av luftighet. Det er også en hage i hagen, som tilbyr en rekke muligheter for innredning etter kundens ønsker – fra et utendørs loungehjørne til et grillområde, et boblebad eller et lite basseng.
I første etasje av bygningen er det en romslig åpen stue med spiseplass og en oppholdsstue med direkte tilgang til hagen. Denne etasjen inneholder i tillegg et gjestetoalett, og en intern trapp fører til første etasje hvor det er to komfortable soverom. Ett av rommene har tilgang til egen balkong, mens begge deler et moderne bad med kvalitetskernikk og sanitærutstyr som kjøperen kan velge etter eget ønske. I toppetasjen er det et romslig hovedsoverom som tilbyr maksimal komfort og privatliv. Rommet har eget bad, en romslig walk-in-garderobe og tilgang til en stor terrasse med fantastisk havutsikt. Villaen er utstyrt med gulvvarme på badene og klimaanlegg i alle rom, noe som gir et komfortabelt opphold hele året. Den selges umøblert, noe som gir den fremtidige eieren friheten til å møblere den etter egen smak og stil. Anlegget inkluderer også én utendørs parkeringsplass, og alle elementer knyttet til innvendig og utvendig dekorasjon kan avtales nærmere med investoren, inkludert installasjon av svømmebasseng eller spesiallagde møbler.
Alle nødvendige fasiliteter som butikker, restauranter, kafeer og andre tjenester ligger i umiddelbar nærhet, i sentrum av byen, mens flyplassen bare ligger 9 kilometer unna. Takket være nærheten til stranden og det krystallklare havet, representerer villaen en utmerket løsning for en familieferie, men også som en investering for turistutleie, gitt den høye etterspørselen etter luksuriøs innkvartering i denne delen av Dalmatia.
Lokasjon
Ciovo, Dalmatia øyene
Čiovo ligger sentralt i Dalmatia, og beskytter byen Trogir og Kaštela-bukten. På sin nordlige del er den koblet til fastlandet med to broer, en bro er i det gamle sentrum av Trogir, og faktisk spredte Trogir seg ut på øya. Foruten delen av Trogir, er det flere landsbyer på øya: Arbanija, Žedno, Okrug Gornji, Okrug Donji og Slatine.
Leter du etter noe annet?







