




Kroatien, Dalmatiens kust, Split stad, Lučac-Manuš - Rymlig lägenhet för renovering
ID: 2036/117Basinformation
Boendeyta:116 m2
Sovrum:4
Badrum:2
Avstånd till havet:800 m
Bekvämligheter
- Energicertifikat
- Parkering
Om fastigheten
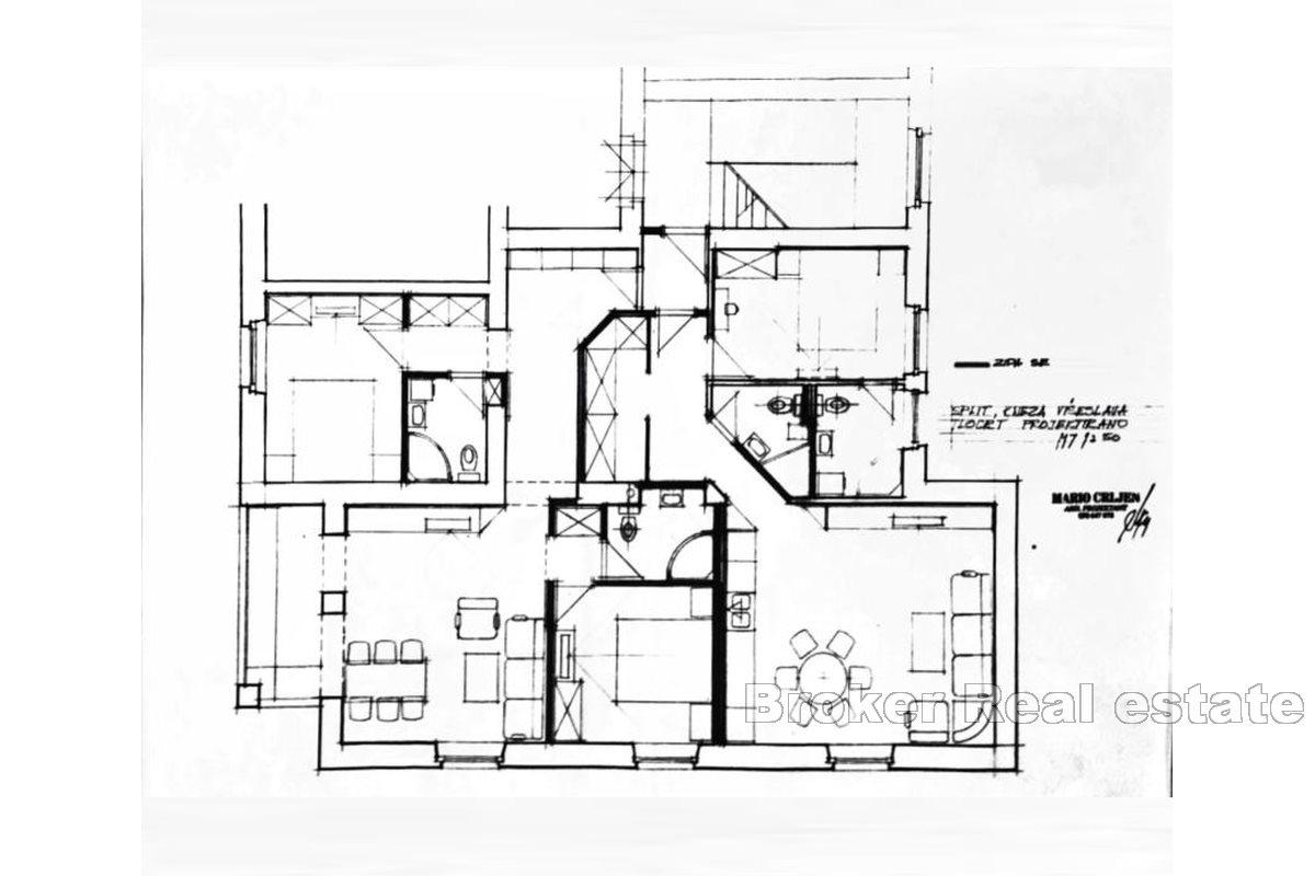
Rymlig herrgårdslägenhet på bottenvåningen, för renovering.
Total boyta 115,62 m², med en täckt terrass på 6,31 m². Lägenheten består av en rymlig hall, ett förråd, fyra bekväma rum, ett vardagsrum med matsal, ett kök, en
badrum och en extra toalett.
Lägenhetens planlösning ger stor potential för anpassning efter egna önskemål och behov, med möjlighet att modernisera utrymmet och optimalt utnyttjande av ytan, och även
möjlighet att dela upp lägenheten i två eller flera enheter idealiska för turism.
Den täckta terrassen ökar ytterligare värdet på denna fastighet, perfekt för en familj eller investering.
En ytterligare fördel är parkeringsplatsen bakom byggnaden som används av alla hyresgäster.
Med tanke på det utmärkta läget är detta inte bara en vanlig lägenhet, utan också en mycket bra investering.
Plats
Split stad, Dalmatiens kust
Split är den näst största staden i Kroatien efter huvudstaden Zagreb, den största staden i Dalmatien och den största staden på den kroatiska kusten. Den ligger på den östra stranden av Adriatiska havet och är spridd över en central halvö och dess omgivningar. Staden är ett intraregionalt transportnav och ett populärt turistmål, och är kopplad till de adriatiska öarna och Apenninhalvön.
Letar du efter något annat?







