




Kroatien, Dalmatien Küste, Split stadt, Lučac-Manuš - Geräumige Wohnung zur Renovierung
ID: 2036/117Grundinformation
Wohnfläche:116 m2
Schlafzimmer:4
Badezimmer:2
Meeresentfernung:800 m
Annehmlichkeiten
- Energiezertifikat
- Parken
Über die Immobilie
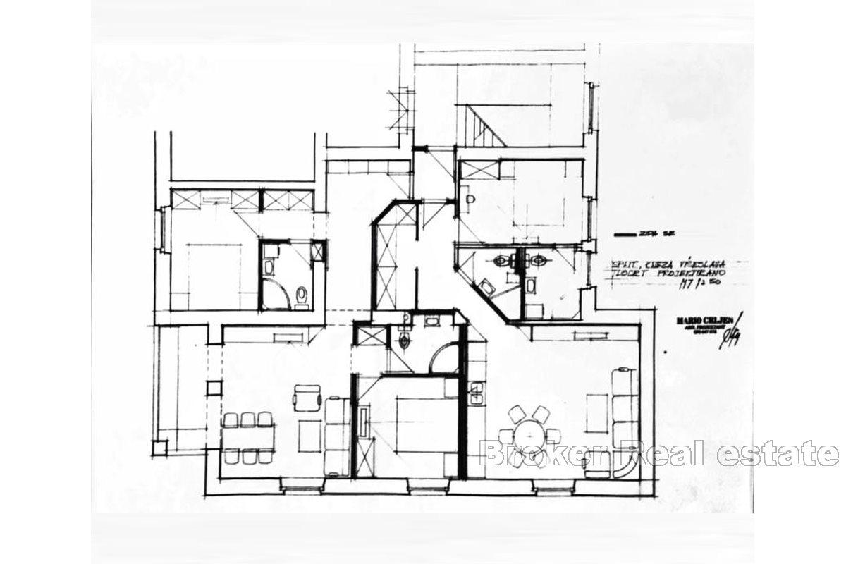
Großzügige Herrenhauswohnung im Erdgeschoss, zur Renovierung.
Gesamtwohnfläche 115,62 m², mit überdachter Terrasse von 6,31 m². Die Wohnung besteht aus einem geräumigen Flur, einem Abstellraum, vier komfortablen Zimmern, einem Wohnzimmer mit Esszimmer, einer Küche, einem
Badezimmer und einer zusätzlichen Toilette.
Der Grundriss der Wohnung bietet großes Potenzial für Anpassungen nach eigenen Wünschen und Bedürfnissen, mit der Möglichkeit der Modernisierung des Raums und der optimalen Nutzung der Fläche, und sogar der
Möglichkeit, die Wohnung in zwei oder mehr Einheiten aufzuteilen, ideal für den Tourismus.
Die überdachte Terrasse steigert den Wert dieser Immobilie zusätzlich, ideal für eine Familie oder als Investition.
Ein zusätzlicher Vorteil ist der Parkplatz hinter dem Gebäude, der von allen Mietern genutzt wird.
Angesichts der hervorragenden Lage ist dies nicht nur eine gewöhnliche Wohnung, sondern auch eine sehr gute Investition.
Standort
Split stadt, Dalmatien Küste
Split ist nach der Hauptstadt Zagreb die zweitgrößte Stadt Kroatiens, die größte Stadt Dalmatiens und die größte Stadt an der kroatischen Küste. Es liegt am Ostufer der Adria und erstreckt sich über eine zentrale Halbinsel und deren Umgebung. Als überregionaler Verkehrsknotenpunkt und beliebtes Touristenziel ist die Stadt mit den adriatischen Inseln und der Apenninenhalbinsel verbunden.
Suchen Sie etwas anderes?







