




Croazia, Costa Dalmazia, Split città, Lučac-Manuš - Spazioso appartamento da ristrutturare
ID: 2036/117Informazioni di base
Spazio vitale:116 m2
Camere da letto:4
Bagni:2
Distanza dal mare:800 m
Dotazioni
- Certificato energetico
- Parcheggio
Sulla proprietà
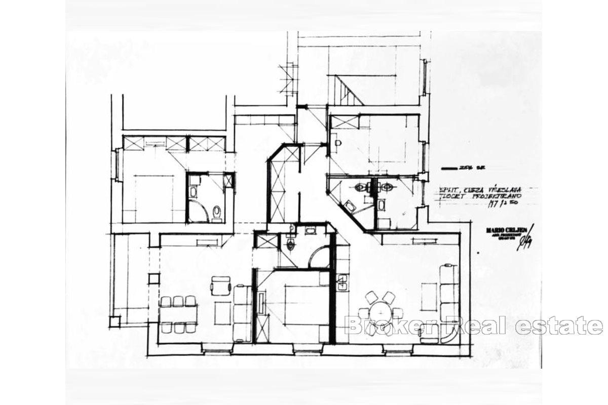
Spazioso appartamento padronale al piano terra, da ristrutturare.
Superficie abitabile totale 115,62 m², con terrazza coperta di 6,31 m². L’appartamento è composto da un ampio ingresso, un ripostiglio, quattro comode stanze, un soggiorno con sala da pranzo, una cucina, un bagno e un ulteriore WC.
La planimetria dell’appartamento offre un grande potenziale di adattamento in base ai propri desideri ed esigenze, con la possibilità di modernizzare lo spazio e un utilizzo ottimale della superficie, e persino la possibilità di dividere l’appartamento in due o più unità, ideale per il turismo.
La terrazza coperta aggiunge ulteriore valore a questa proprietà, ideale per una famiglia o un investimento.
Un ulteriore vantaggio è il parcheggio dietro l’edificio, che viene utilizzato da tutti gli inquilini.
Data l’eccellente posizione, questo non è solo un normale appartamento, ma anche un ottimo investimento.
Posizione
Split città, Costa Dalmazia
Spalato è la seconda città più grande della Croazia dopo la capitale Zagabria, la città più grande della Dalmazia e la città più grande della costa croata. Si trova sulla sponda orientale del Mar Adriatico e si sviluppa su una penisola centrale e sui suoi dintorni. Snodo dei trasporti intraregionali e popolare destinazione turistica, la città è collegata alle isole dell'Adriatico.
Stai cercando qualcos'altro?







