





Chorvatsko, Dalmácie ostrovy, Ciovo - Byty ve výstavbě s bazénem a výhledem na moře
ID: 2016/639Základní informace
Obytný prostor:111 m2
Ložnice:2
Koupelny:2
Vzdálenost moře:240 m
Výhody nemovitosti
- Bazén
- Novostavby
- Výhled na moře
Vybavení
- Parkoviště
O nemovitosti
Moderní apartmány ve výstavbě, s bazénem a výhledem na moře, na prodej, na severní straně ostrova Čiovo, tyto moderní apartmány se nacházejí v klidné rezidenční čtvrti v budově s celkem 8 jednotkami.
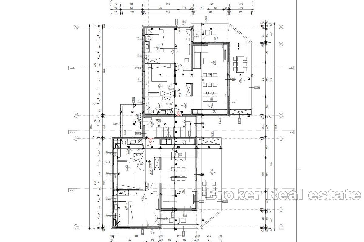
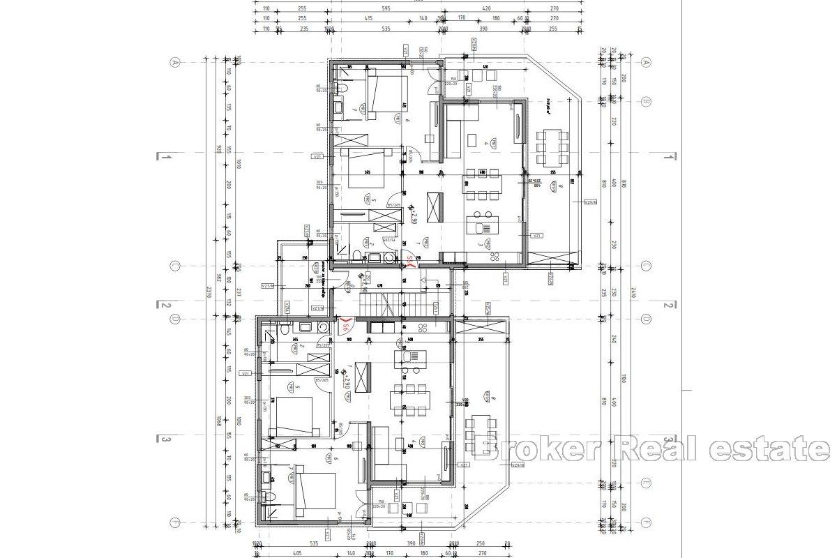
Byty mají plochu 111 m² a stejný půdorys, skládají se z předsíně, dvou ložnic, dvou koupelen a otevřené kuchyně a obývacího pokoje se vstupem na prostorný balkon.
Obyvatelé budovy mají přístup ke společnému bazénu umístěnému před budovou a ke každému bytu patří dvě parkovací místa.
Budova se nachází na mírně vyvýšeném místě, které zajišťuje výjimečný výhled do okolí a na moře, které je vzdálené pouhých 240 metrů.
V docházkové vzdálenosti najdete spoustu zařízení, jako jsou restaurace, bary, specializované obchody a četné krásné oblázkové pláže, ideální pro rodiny s dětmi.
Tyto apartmány jsou vynikající volbou pro pohodlné bydlení nebo jako investice pro rodinnou dovolenou, nabízejí maximální komfort a jedinečnou kvalitu bydlení na pobřeží.
Dostupné apartmány:
• Přízemí (Apartmán 4): 389 000 EUR – PRODÁNO!
• 1. patro (Apartmán 6): 409 000 EUR
• 2. patro (byt 8): 450 000 EUR
Umístění
Ciovo, Dalmácie ostrovy
Čiovo se nachází ve střední Dalmácii, chrání město Trogir a záliv Kaštela. Na své severní části je spojen s pevninou dvěma mosty, jeden most je ve starém centru Trogiru a část Trogiru se vlastně rozprostírá na ostrov. Kromě části Trogir je na ostrově několik vesnic: Arbanija, Žedno, Okrug Gornji, Okrug Donji a Slatine.
Hledáte něco jiného?










